
Königskinder Immobilien GmbH
Herr Martin Voigt
004 ···
Nr. anzeigenPreise & Kosten
Provision für Käufer
4,76 % vom Kaufpreis inkl. gesetzl. Mehrwertsteuer
Lage
Das Baden-Württembergische Forbach liegt mit ca. 4700 Einwohnern im nördlichen Schwarzwald und gehört zum Landkreis Rastatt. Die angebotene Immobilie befindet sich in familienfreundlicher, ruhiger Lage von Forbach-Gausbach. Alle Dinge des täglichen Bedarfs wie Einkaufsmöglichkeiten, medizinische Versorgung, Schulen, Kitas...
Das Haus
Kategorie
Mehrfamilienhaus
Baujahr
1955
Energie & Heizung
Warum sehe ich diese Anzeige? – Du siehst diese Anzeige basierend auf Ihrer Navigation auf unserer Website und den Suchkriterien, die du verwendet hast.
Energieausweistyp
Bedarfsausweis
Gebäudetyp
Wohngebäude
Baujahr laut Energieausweis
2003
Wesentliche Energieträger
OEL
Gültigkeit
bis 21.09.2031
Effizienzklasse
H
Endenergiebedarf
24,08 kWh/(m²·a)
Weitere Energiedaten
Haustyp
Massivhaus
Energieträger
Holz, Öl, Solar
Heizungsart
offener Kamin
Details
Objektbeschreibung
Das äußerst großzügige Zweifamilienhaus wurde im Jahr 1955 in massiver Bauweise in einer ruhigen Lage von Forbach-Gausbach errichtet. Die Immobilie wurde im Jahr 1986 komplett umgebaut und modernisiert.
Das Anwesen befindet sich fernab der städtischen Hektik und ist auch hervorragend für eine große Familie geeignet...
Ausstattung
UG:
-Technikraum Öl-Zentralheizung oder wahlweise Holz (auch kombinierbar) zusätzlich wurde im Jahr 2008 eine Solaranlage installiert, welche größtenteils den gesamten Warmwasserbereich abdeckt.
- Waschraum
- Hobbyraum
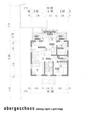
EG:
- 3-Zimmer-Wohnung ca. 70m²
- großer Balkon
- neue Einbauküche
-...
Weitere Informationen
Sonstiges
Da wir uns bei allen Angaben auf die Informationen Dritter stützen müssen, können wir keine Gewähr für deren Richtigkeit und Vollständigkeit übernehmen.
Bitte haben Sie Verständnis dafür, dass wir nur Anfragen mit vollständiger Adressangabe und erreichbarer Handynummer bearbeiten können.
Nachdem...
Anbieter der Immobilie
Online-ID: 2nytl5f
Referenznummer: LDW1.MV.10844
Finde Angebote wie dieses
Hier geht es zu unserem Impressum, den Allgemeinen Geschäftsbedingungen, den Hinweisen zum Datenschutz und nutzungsbasierter Online-Werbung.