

Dressel Immobilien GmbH
Herr Samuel Münch
092 ···
Nr. anzeigenPreise & Kosten
Provision für Käufer
3,57% (inkl. MwSt)
Lage
Die Immobilien befinden sich inmitten der lebendigen Fußgängerzone von Kulmbach, umgeben von einer Mischung aus Wohn- und Geschäftshäusern, die das urbane Flair der Innenstadt prägen. In direkter Nachbarschaft befinden sich Einzelhandelsgeschäfte, Cafés, Restaurants und kleine Dienstleistungsbetriebe, die das Viertel beleben...
Das Haus
Kategorie
Mehrfamilienhaus
Baujahr
1910
Bezug
sofort
Derzeitige Nutzung
vermietet
Energie & Heizung
Warum sehe ich diese Anzeige? – Du siehst diese Anzeige basierend auf Ihrer Navigation auf unserer Website und den Suchkriterien, die du verwendet hast.
Energieausweistyp
Bedarfsausweis
Gebäudetyp
Wohngebäude
Wesentliche Energieträger
Gas
Gültigkeit
16.11.2022 bis 15.11.2032
Effizienzklasse
D
Endenergiebedarf
242,80 kWh/(m²·a)
Weitere Energiedaten
Energieträger
Gas
Heizungsart
Zentralheizung
Details
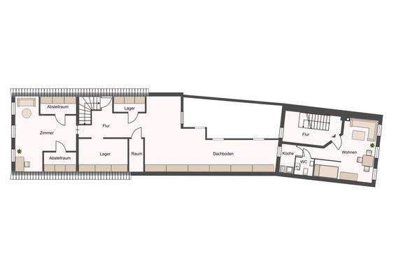
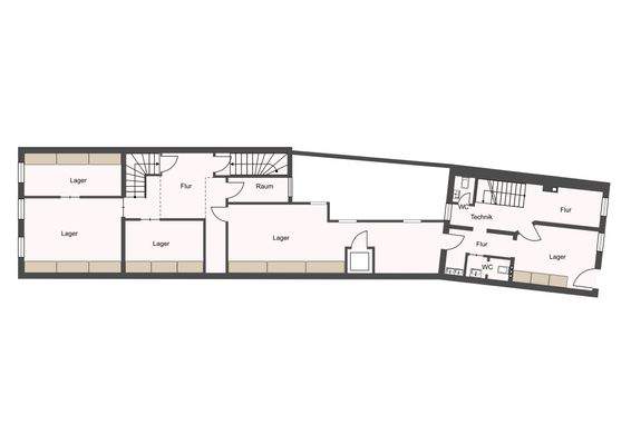
Objektbeschreibung
Dieses exklusive Immobilien-Ensemble stellt eine seltene Gelegenheit für Investoren dar, sich gleich zwei markante Objekte im pulsierenden Herzen der Kulmbacher Innenstadt zu sichern. Direkt in der belebten Fußgängerzone gelegen und nur wenige Schritte vom künftigen Unicampus sowie dem Bahnhof entfernt, vereint dieses Paket...
Ausstattung
- Vermietbare Fläche: ca. 853,49m², vielseitig nutzbar
- Attraktive Mietsteigerungspotenziale
- Barrierefreie Gewerbeeinheiten in 1A-Lage, vielseitig für Mieter
- Fußgängerzone, Nähe öffentl. Parkhaus und Bahnhof
- Gepl. Unicampus & zentrale Lage: Wertsteigerung garantiert
Weitere Informationen
Sonstiges
Der Käufer zahlt im Erfolgsfall an die Firma Dressel Immobilien GmbH eine Käufer- Maklerprovision in Höhe von 3,57% inkl. 19% MwSt. Die Provision errechnet sich aus dem beurkundeten Kaufpreis.
Dieses Exposé ist eine Vorabinformation, als Rechtsgrundlage gilt allein der notariell abgeschlossene Kaufvertrag...
Anbieter der Immobilie
Dressel Immobilien GmbH
Nürnberger Straße 19, 95448 Bayreuth

Online-ID: 2nyrv5q
Referenznummer: 882
Finde Angebote wie dieses
Hier geht es zu unserem Impressum, den Allgemeinen Geschäftsbedingungen, den Hinweisen zum Datenschutz und nutzungsbasierter Online-Werbung.