

DAHLER Potsdam | Berlin-Wannsee | Kleinmachnow
Herr Kevin Manhardt
033 ···
Nr. anzeigenPreise & Kosten
Provision für Käufer
3,57% inkl. MwSt. bezogen auf den beurkundeten Kaufpreis
Lage
Die Nauener Vorstadt ist eine der meistgesuchten Lagen für hohe Wohnansprüche in Potsdam. Das sehr attraktive Wohngebiet entwickelte sich an den früheren Weinbergen des 18. Jahrhunderts zwischen Pfingstberg und Heiliger See. Vom damaligen Weinbau künden die Große und die Kleine Weinmeisterstrasse mit ihren Namen noch heute...
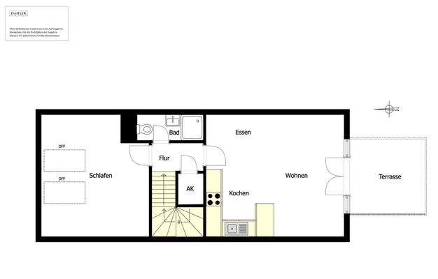
Die Wohnung
Kategorie
Maisonette
Wohnungslage
1. Geschoss
Derzeitige Nutzung
vermietet
Wohnanlage
Energie & Heizung
Warum sehe ich diese Anzeige? – Du siehst diese Anzeige basierend auf Ihrer Navigation auf unserer Website und den Suchkriterien, die du verwendet hast.
Energieausweistyp
Verbrauchsausweis
Gebäudetyp
Wohngebäude
Baujahr laut Energieausweis
1900
Wesentliche Energieträger
KWK_FOSSIL
Gültigkeit
bis 21.05.2033
Effizienzklasse
C
Endenergieverbrauch
80,20 kWh/(m²·a)
Weitere Energiedaten
Energieträger
Fernwärme
Heizungsart
Zentralheizung
Details
Objektbeschreibung
Für Anleger, die Werthaltigkeit, Lagequalität und Vermietungssicherheit priorisieren: Diese gepflegte, seit 01.04.2012 vermietete 3-Zimmer-Maisonette liegt in der denkmalgeschützten Roten Kaserne "Cour d'Équipage®". Das Ensemble wurde 2009-2011 umfassend und denkmalgerecht saniert - ein starker Parameter für Substanz...
Ausstattung
. Gehobene und geschichtsträchtige Wohnanlage aus dem Jahr 1920, welche zwischen 2009 - 2011 hochwertig saniert wurde
. Ruhige und helle 3-Zimmer-Maisonettewohnung mit ca. 80 m² Wohnfläche
. Zwei elegante Badezimmer mit Badewanne und Dusche
. Attraktive Dachterrasse
. Hochwertiges Parkett in den Wohnräumen und im...
Preisinformation
2 Stellplätze
Weitere Informationen
Sonstiges
Ihre Werte sind bei uns in besten Händen
DAHLER ist auf die Vermittlung hochwertiger Wohnimmobilien in bevorzugten Lagen spezialisiert. Seit über 30 Jahren wird unser Unternehmen von Kirsten und Björn Dahler geführt und setzt mit Innovationskraft und Servicequalität Maßstäbe in der Branche. Unsere mehr als...
Anbieter der Immobilie

Online-ID: 2nyjk5j
Referenznummer: D-POT8793-INVEST
Finde Angebote wie dieses
Hier geht es zu unserem Impressum, den Allgemeinen Geschäftsbedingungen, den Hinweisen zum Datenschutz und nutzungsbasierter Online-Werbung.