

Schwabenhaus Potsdam - Danny Hösel
Herr Danny Hösel
017 ···
Nr. anzeigenPreise & Kosten
Provision für Käufer
provisionsfrei
Lage
Das Grundstück befindet sich in idyllischer Lage im Ortsteil Sarkow der Gemeinde Friedland (Landkreis Oder-Spree, Brandenburg). Umgeben von weitläufigen Wiesen, Feldern und Wäldern bietet die Umgebung viel Ruhe und Natur, während gleichzeitig eine gute Anbindung an das regionale und überregionale Verkehrsnetz gewährleistet...
Das Haus
Kategorie
Einfamilienhaus
Energie & Heizung
Warum sehe ich diese Anzeige? – Du siehst diese Anzeige basierend auf Ihrer Navigation auf unserer Website und den Suchkriterien, die du verwendet hast.
Weitere Energiedaten
Heizungsart
Fußbodenheizung
Details
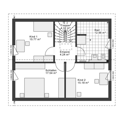
Objektbeschreibung
YOUR FAMILY'S FOREVER HOME.
Ein Zuhause ist nicht nur ein Ort - es ist ein Gefühl.
Es bedeutet Freiheit, Sicherheit und eine Zukunft, die du selbst gestalten kannst.
Mit White&Black bekommst du mehr als ein Haus - du bekommst einen Lebensraum, der mit dir wächst.
Stell dir vor:
Ein...
Ausstattung
THINK FAST-VOLLENDET PLUS - Bereit für dein Finish.
- Technik, Heizung & Sanitärinstallation sind drin - du kümmerst dich nur um den Feinschliff
- Das Plus mit hochwertigen Sanitärobjekten und Fliesen
- Streichen, Böden verlegen, Türen setzen - du machst, was du willst
- Kein Stress mit Rohbau oder Technik...
Weitere Informationen
Sonstiges
Das Haus ist projektiert inkl. Grundstück. Das Grundstück wird in Kommission angeboten bzw. direkt von Dritten verkauft. Daher kann der genannte Preis aufgrund aktueller Marktsituationen schwanken.
Die Bauabwicklung kann kurzfristig nach Grundstückserwerb begonnen werden. Bilder zeigen möglicherweise...
Anbieter der Immobilie
Schwabenhaus Potsdam - Danny Hösel
Unger Park 4, 14542 Werder (Havel)

Online-ID: 2nyje5v
Referenznummer: WB--32561-Friedland
Finde Angebote wie dieses
Hier geht es zu unserem Impressum, den Allgemeinen Geschäftsbedingungen, den Hinweisen zum Datenschutz und nutzungsbasierter Online-Werbung.