

Werner Doll Immobilien
Herr Werner Doll
017 ···
Nr. anzeigenPreise & Kosten
Provision für Käufer
Käufer und Verkäufer jeweils 3,57 % incl. MwSt.
Lage
Die Immobilie befindet sich in guter Lage im südlichen Stadtgebiet von Oldenburg, im Bereich Osternburg / Tweelbäke, Nahe dem Gewerbegebiet Tweelbäke. Die Umgebung zeichnet sich durch eine gelungene Kombination aus ruhigem Wohnen und sehr guter infrastruktureller Anbindung aus.
Die Lage überzeugt durch ihre...
Das Haus
Kategorie
Einfamilienhaus
Baujahr
1906
Bezug
01.08.2026
Energie & Heizung
Warum sehe ich diese Anzeige? – Du siehst diese Anzeige basierend auf Ihrer Navigation auf unserer Website und den Suchkriterien, die du verwendet hast.
Energieausweistyp
Verbrauchsausweis
Gebäudetyp
Wohngebäude
Wesentliche Energieträger
Gas
Endenergieverbrauch
136,00 kWh/(m²·a)
Weitere Energiedaten
Haustyp
Niedrigenergiehaus
Energieträger
Gas
Heizungsart
Zentralheizung
Details
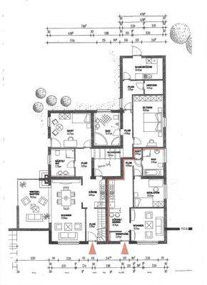
Objektbeschreibung
Dieses vielseitige, ursprünglich als Doppelhaus errichtete Objekt bietet ein großzügiges Raumkonzept und eine solide Substanz. Nach umfassender Kernsanierung und individueller Erweiterung beider Wohnungen von Juni 1994 bis März 1995 entstand ein modernes Wohnambiente, das sowohl für Eigennutzer als auch für Kapitalanleger...
Dokumente
Anbieter der Immobilie
Werner Doll Immobilien
August-Wilhelm-Kühnholz-Str. 5, 26135 Oldenburg

Online-ID: 2nyhv5x
Finde Angebote wie dieses
Hier geht es zu unserem Impressum, den Allgemeinen Geschäftsbedingungen, den Hinweisen zum Datenschutz und nutzungsbasierter Online-Werbung.