
HI Heid Immobilien GmbH
Herr Hans-Peter Heid
+49 ···
Nr. anzeigenPreise & Kosten
Provision für Käufer
provisionsfrei
Lage
Das Baugrundstück befindet sich in zentraler, dennoch ruhiger Lage im alten Ortskern von Freiburg-Waltershofen. Der Stadtteil liegt idyllisch zwischen dem Tuniberg und dem Kaiserstuhl im westlichen Teil von Freiburg und vereint ländliche Wohnqualität mit der Nähe zur Stadt.
Waltershofen ist geprägt von seinem...
Die Immobilie
Zu diesem Angebot wurden vom Anbieter keine weiteren Daten hinterlegt. Für weitere Informationen bitte den Anbieter kontaktieren.
Nach Informationen fragenDetails
Objektbeschreibung
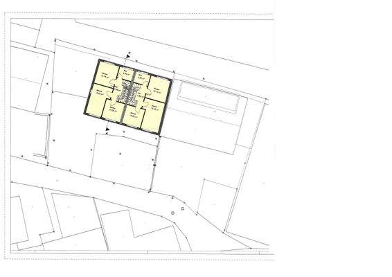
In attraktiver Ortskernlage von Freiburg-Waltershofen (Spielhöfe 4) bietet sich Ihnen die seltene Gelegenheit, ein optimal geschnittenes Baugrundstück mit geplantem Doppelhausprojekt zu erwerben. Das Grundstück umfasst ca. 401 m², ist voll erschlossen und aktuell mit einem abrissreifen Altbestand bebaut.
Für das...
Anbieter der Immobilie
Online-ID: 2nyhr5n
Referenznummer: 430 spielhöfe 4
Finde Angebote wie dieses
Hier geht es zu unserem Impressum, den Allgemeinen Geschäftsbedingungen, den Hinweisen zum Datenschutz und nutzungsbasierter Online-Werbung.