
Immobilien Service Zimmermann Wilhelm Zimmermann GmbH & Co. KG
004 ···
Nr. anzeigenPreise & Kosten
Provision für Käufer
3,5 % des Kaufpreises inkl. Mehrwertsteuer
Lage
Die Immobilie liegt in einer kleinen Seitenstraße, die durch gepflegte Wohnbebauung geprägt ist. Einkaufsmöglichkeiten für den täglichen Bedarf können Sie fußläufig erreichen. Eine große Einkaufsvielfalt finden Sie rund um den Poppenbüttler Markt einschließlich Wochenmarkt sowie im Alstertal Einkaufszentrum. Eine Buslinie...
Die Wohnung
Wohnungslage
Erdgeschoss
Bezug
nach Vereinbarung
Wohnanlage
Energie & Heizung
Warum sehe ich diese Anzeige? – Du siehst diese Anzeige basierend auf Ihrer Navigation auf unserer Website und den Suchkriterien, die du verwendet hast.
Energieausweistyp
Bedarfsausweis
Gebäudetyp
Wohngebäude
Baujahr laut Energieausweis
1971
Wesentliche Energieträger
GAS
Gültigkeit
bis 28.04.2035
Effizienzklasse
F
Endenergiebedarf
179,20 kWh/(m²·a)
Weitere Energiedaten
Energieträger
Gas
Heizungsart
Etagenheizung
Details
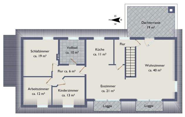
Objektbeschreibung
Dieses charmante Zweifamilienhaus wurde 1954 erbaut und im Laufe der Jahre kontinuierlich erweitert und modernisiert. Es bietet Ihnen die Möglichkeit, das gesamte Haus (siehe anderes Immobilienangebot) im aktuellen Zustand oder alternativ eine (hier: Obergeschosswohnung) der beiden Eigentumswohnungen zu erwerben, die...
Ausstattung
- Separater Eingang mit Windfang und praktischer Garderobenfläche
- Großzügiger, offen gestalteter Wohn-, Ess- und Küchenbereich mit hellem Fliesenboden
- Ca. 19 m² große Dachterrasse
- Zwei überdachte West-Loggien
- Großes Schlafzimmer sowie zwei weitere Zimmer, mit hellem Teppichboden
- Modernes...
Preisinformation
1 Garagenstellplatz
Weitere Informationen
Sonstiges
Der Makler ist auch für den Verkäufer aktiv und beansprucht von diesem ebenfalls Provision. Er darf bei Preisverhandlungen auch für die andere Vertragspartei tätig sein.
Stichworte
Anzahl der Schlafzimmer: 3, Anzahl der Badezimmer: 1, Anzahl Balkone: 2, Anzahl Terrassen: 1, Anzahl der Wohneinheiten: 1...
Online-ID: 2nyhf5m
Referenznummer: 2217
Finde Angebote wie dieses
Hier geht es zu unserem Impressum, den Allgemeinen Geschäftsbedingungen, den Hinweisen zum Datenschutz und nutzungsbasierter Online-Werbung.