

Bauteam GmbH
Herr Roman Bürger
0 3 ···
Nr. anzeigenPreise & Kosten
Provision für Käufer
provisionsfrei
Lage
Das Grundstück befindet sich in Stralsund/ Viermorgen. Das zukünftige Wohngebiet verfügt über eine gute Verkehrs- und Busanbindung. Von hier aus gelangen Sie in wenigen Minuten in die wunderschöne Altstadt mit dem Stralsunder Hafen.
Viermorgen verfügt über diverse Einkaufsmöglichkeiten, Friseure, Ärzte, Spielplätze...
Das Grundstück
Details
Objektbeschreibung
+++Neubau eines Ein- oder Mehrfamilienhauses+++
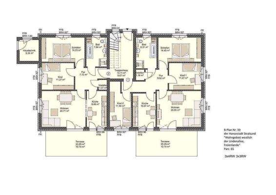
Das Baugrundstück mit einer Größe von ca. 662 m² befindet sich in der Hansestadt Stralsund, in ruhiger Lage zwischen Lindenallee und dem Ort Freienlande. Das Grundstück ist südwestlich ausgerichtet und befindet sich innerhalb des rechtskräftigen Bebauungsplan Nr. 39. Laut...
Weitere Informationen
Sonstiges
Änderungen von Preisen oder Ausstattungen, sowie Irrtümer oder Zwischenverkauf sind vorbehalten.
Es gilt die jeweilige Baubeschreibung und Preisliste der Firma BAUTEAM GmbH Stralsund. Für Angaben von Dritten und/oder Behörden kann keine Gewähr übernommen werden.
Kaufnebenkosten wie Grunderwerbsteuer...
Anbieter der Immobilie
Bauteam GmbH
Bauhofstraße 1 E, 18439 Stralsund

Online-ID: 2nygw5y
Referenznummer: P47GRDSTVIE OS
Finde Angebote wie dieses
Hier geht es zu unserem Impressum, den Allgemeinen Geschäftsbedingungen, den Hinweisen zum Datenschutz und nutzungsbasierter Online-Werbung.