

Zieglmeier Immobilien OHG
Frau Elena Zieglmeier
+49 ···
Nr. anzeigenPreise & Kosten
zzgl. Nebenkosten
Kaution
3 MM
Provision für Mieter
2,38 Nettomonatsmieten inkl. MwSt. inkl. MwSt.
Nach Abschluss eines rechtswirksamen Mietvertrags ist vom Mieter eine Provision von 2,32 Netto-Monatsmieten inkl. MwSt. an den Makler zu bezahlen.
Warum sehe ich diese Anzeige? – Du siehst diese Anzeige basierend auf Ihrer Navigation auf unserer Website und den Suchkriterien, die du verwendet hast.
Lage
Die Ladenfläche befindet sich direkt in der Fußgängerzone von Ingolstadt. Die Lage zeichnet sich besonders durch den regen Publikumsverkehr aus.
Viele verschiedene Einkaufmöglichkeiten, sowie der öffentliche Nahverkehr, sind durch die zentrale Lage schnell und gut erreichbar. Die nächsten Parkmöglichkeiten befinden sich in...
Die Ladenfläche
Kategorie
Laden
Baujahr
1948
Bezug
ab sofort
Erdgeschoss
Energie & Heizung
Warum sehe ich diese Anzeige? – Du siehst diese Anzeige basierend auf Ihrer Navigation auf unserer Website und den Suchkriterien, die du verwendet hast.
Wärme
Energieausweistyp
Bedarfsausweis
Gebäudetyp
Nicht-Wohngebäude
Baujahr laut Energieausweis
1948
Wesentliche Energieträger
GAS
Gültigkeit
bis 16.07.2030
Endenergiebedarf (Wärme)
158,10 kWh/(m²·a)
Weitere Energiedaten
Energieträger
Gas
Details
Objektbeschreibung
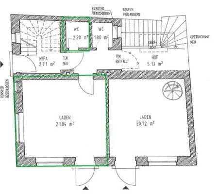
Die Ladenfläche hat ca. 22 m² und befindet sich in optimaler und hoch frequentierter Lage in der Mauthstraße. Die großen ums Eck verlaufenden Schaufenster bietet vielfältige Gestaltungsmöglichkeiten und hohe Sichtbarkeit.
Im Keller steht dem neuen Mieter ein Abstellraum zur Verfügung. Außerdem gehört ein WC zur...
Preisinformation
Nettokaltmiete: 1.800,00 EUR
Weitere Informationen
Sonstiges
Die Informationen in diesem Exposé beruhen auf Angaben, die wir vom Eigentümer erhalten haben. Für deren Richtigkeit und Vollständigkeit übernehmen wir keine Haftung.
Die Informationen in diesem Exposé sind ausschließlich für unseren Auftraggeber bestimmt. Die unberechtigte Weitergabe an Dritte ist verboten...
Anbieter der Immobilie

Online-ID: 2nyfl5y
Referenznummer: vmg879
Finde Angebote wie dieses
Hier geht es zu unserem Impressum, den Allgemeinen Geschäftsbedingungen, den Hinweisen zum Datenschutz und nutzungsbasierter Online-Werbung.