
ohne-makler.net - Immobilien selbst vermarkten
Privat von Peter Haug
Kontaktiere den Anbieter schriftlich, es ist keine Telefonnummer hinterlegt.
Preise & Kosten
nicht in Warmmiete enthalten
Kaution
900,00
Warum sehe ich diese Anzeige? – Du siehst diese Anzeige basierend auf Ihrer Navigation auf unserer Website und den Suchkriterien, die du verwendet hast.
Lage
Die Wohnung liegt sehr zentral am Löwenmarkt mit hervorragender Infrastruktur.
Die U-Bahn fährt etwa alle 10 Minuten direkt zum Hauptbahnhof und zur Messe.
Die Fahrzeit zum Hauptbahnhof beträgt etwa 15 Minuten.
In unmittelbarer Umgebung befinden sich:
.Lidl, Rewe und dm
.Bioläden
.Post und...
Wohnen auf Zeit
Kategorie
Zimmer
Baujahr
1918
Frei
ab sofort
Wohnungslage
1. Geschoss
Energie & Heizung
Warum sehe ich diese Anzeige? – Du siehst diese Anzeige basierend auf Ihrer Navigation auf unserer Website und den Suchkriterien, die du verwendet hast.
Weitere Energiedaten
Energieträger
Gas
Heizungsart
Etagenheizung
Details
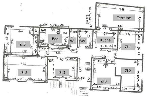
Objektbeschreibung
Helles 15 m² WG-Zimmer in frisch renovierter 6er-WG mit großer Terrasse und Garten. Moderne Küche, Waschmaschine & Trockner. Ruhige Lage am Löwenmarkt mit perfekter Anbindung - nur 15 Minuten zum Hauptbahnhof. Warmmiete 550 €.
Ab 01.04.2026 wird ein helles 15 m² WG-Zimmer in einer ruhigen und frisch renovierten...
Ausstattung
Terrasse, Garten, Dachterrasse, Vollbad, Duschbad, Einbauküche, Gäste-WC, Parkett
Bemerkungen:
Ausstattung
.große Terrasse
.Gartenmitnutzung
.moderne Einbauküche
.Geschirrspüler
.Waschmaschine und Trockner (nur für die WG)
.Bad mit Dusche und Badewanne
.zwei separate WCs
.überdachter nicht...
Preisinformation
Nettokaltmiete: 450,00 EUR
Weitere Informationen
Sonstiges
Heizungsart: Etagenheizung
Energieträger: Gas
Energieausweis nicht vorhanden
Die Nebenkosten beinhalten:
.Wasser
.Gas
.Hausnebenkosten
.normalen Stromverbrauch (auch in der Waschküche)
Nicht enthalten sind:
.GEZ
.WLAN (wird von der WG organisiert und geteilt)
Bei...
Anbieter der Immobilie
ohne-makler.net - Immobilien selbst vermarkten
Humboldtstr. 25 A, 21509 Glinde
Privat von Peter Haug
Dein Ansprechpartner
Kontaktiere den Anbieter schriftlich, es ist keine Telefonnummer hinterlegt.
Online-ID: 2nyfc5v
Referenznummer: 361740
Finde Angebote wie dieses
Hier geht es zu unserem Impressum, den Allgemeinen Geschäftsbedingungen, den Hinweisen zum Datenschutz und nutzungsbasierter Online-Werbung.