
Immobilien Wörl GmbH
Herr Mathias Querengässer
+49 ···
Nr. anzeigenPreise & Kosten
zzgl. Nebenkosten
Provision für Mieter
3 Bruttogesamtmonatsmieten zzgl. MwSt.
Warum sehe ich diese Anzeige? – Du siehst diese Anzeige basierend auf Ihrer Navigation auf unserer Website und den Suchkriterien, die du verwendet hast.
Lage
A9 und A99 (Nürnberg - München - Salzburg)
B471 (Garching - Aschheim), B388 (Erding) und Staatsstraße 2053 (Unterföhring - München)
Angebunden an die S8 zum Münchner Flughafen bzw. zur Innenstadt
S-Bahn fußläufig erreichbar
Büro-/Praxisfläche
Kategorie
Bürofläche
Bezug
ab sofort, nach Vereinbarung
Details
Objektbeschreibung
Bürofläche 1. OG: ca. 217 m²
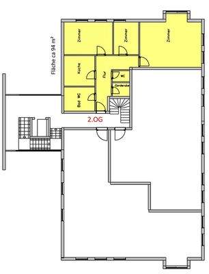
Bürofläche 2. OG links: ca. 94 m²
Bürofläche 2. OG: ca. 109 m²
Miete 217 + 94 m²: € 8,90 / m²
Miete 109 m²: € 9,50 / m²
Nebenkosten: € 1,90 / m²
FG-Stellplatz: € 30,00 / Stück
TG-Stellplatz: € 50,00 / Stück
Zggl. gesetzl. MwSt.
Kaution: 3...
Ausstattung
Bürofläche 217 m²:
CAT-Verkabelung
Gaszentralheizung
Personenaufzug
Küchenanschlüsse
Optionale Anmietung eines Kellerraum bzw. Lager
Neuer Bodenbelag: Vinyl und Nadelfilz, Fliesen Bestand
Bürofläche 94 m²:
CAT-Verkabelung
Gaszentralheizung
Personenaufzug
Küchenanschlüsse
Umbau nach...
Preisinformation
Nettokaltmiete: 8,90 EUR
Weitere Informationen
Sonstiges
Momentan liegt uns für dieses Objekt kein Energieausweis vor, dessen Kennwerte nach § 16a der Energieeinsparverordnung ab dem 01.05.2014 in der Anzeige anzugeben wären. Hiervon unberührt bleibt die Verpflichtung des Eigentümers der Immobilie, einen gültigen Energieausweis erstellen zu lassen und nach Maßgabe des...
Anbieter der Immobilie
Immobilien Wörl GmbH
Karlsberg 8, 85221 Dachau
Online-ID: 2nyed5j
Referenznummer: 4782
Finde Angebote wie dieses
Hier geht es zu unserem Impressum, den Allgemeinen Geschäftsbedingungen, den Hinweisen zum Datenschutz und nutzungsbasierter Online-Werbung.