

Sommer Hanse Immobilien Projektentwicklung
Herr René Sommer
038 ···
Nr. anzeigenPreise & Kosten
Provision für Käufer
provisionsfrei
Lage
Kühlungsborn ist eines der ältesten und beliebtesten Ostseebäder und hat mit über 3100?m die zweitlängste deutsche Strandpromenade nach den Kaiserbädern auf Usedom. Der Ort bildet das Herzstück der „mecklenburgischen Riviera“. Das Seebad ist der größte Bade- und Erholungsort Mecklenburgs. Es liegt an der Ostseeküste direkt an...
Das Haus
Kategorie
Doppelhaushälfte
Baujahr
2027
Bezug
01.03.2027
Energie & Heizung
Warum sehe ich diese Anzeige? – Du siehst diese Anzeige basierend auf Ihrer Navigation auf unserer Website und den Suchkriterien, die du verwendet hast.
Energieausweis: für diesen Gebäudetyp nicht notwendig
Weitere Energiedaten
Haustyp
KfW 40
Energieträger
Elektro
Heizungsart
Fußbodenheizung, Luft-/Wasser-Wärmepumpe, Zentralheizung
Details
Objektbeschreibung
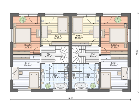
Eine Doppelhaushälfte, die zum Wohlfühlen einlädt, bietet beeindruckende 131 m² Wohnfläche, perfekt für persönliche Gestaltungswünsche. Im Erdgeschoss empfängt ein geräumiges und gemütliches Wohnzimmer mit großen Glasflächen und Blick ins Grüne für die Familie und schafft eine harmonische Atmosphäre. Die einladende Küche mit...
Ausstattung
Das Objekt besticht durch eine hochwertige Ausstattung. Auch die barrierefreie Zugänglichkeit ist gegeben, was den Wohnkomfort erhöht. Bauantrag, Statik und Wärmeschutznachweis,
massive Bauweise und Stahlbetonarbeiten, Holz und Dachdeckerarbeiten mit hochwertigen Tondachsteine, Wandsystem: einschaliges Mauerwerk in...
Weitere Informationen
Sonstiges
Umfassende Informationen und eine entscheidende Gelegenheit erwarten Sie in diesem Neubauprojekt, das durch seine hochwertige Putzbauweise besticht. wichtig
Es handelt sich bei diesem Beispiel um ein Neubauvorhaben in Putzbauweise.
Der Grundpreis beinhaltet Haus und Grundstück. Die Bauneben-...
Anbieter der Immobilie
Sommer Hanse Immobilien Projektentwicklung
Kurzer Weg 14, 23970 Kritzow

Online-ID: 2nyc55x
Referenznummer: DM11_15_03_26
Finde Angebote wie dieses
Hier geht es zu unserem Impressum, den Allgemeinen Geschäftsbedingungen, den Hinweisen zum Datenschutz und nutzungsbasierter Online-Werbung.