

Kreis-Sparkasse Northeim
Herr Oliver Kirch
055 ···
Nr. anzeigenPreise & Kosten
Provision für Käufer
2,975 % inkl. MwSt.
Lage
Das Haus befindet sich in besonders begehrter Waldrandlage am Wieter, einem der beliebtesten und naturnahsten Wohngebiete Northeims. Direkt vor der Haustür beginnen weitläufige Wald- und Wanderwege, die zu Spaziergängen, Fahrradtouren und gemeinsamen Familienausflügen einladen. Kinder finden hier viel Raum zum Spielen und...
Das Haus
Kategorie
Einfamilienhaus
Baujahr
1979
Energie & Heizung
Warum sehe ich diese Anzeige? – Du siehst diese Anzeige basierend auf Ihrer Navigation auf unserer Website und den Suchkriterien, die du verwendet hast.
Energieausweistyp
Verbrauchsausweis
Gebäudetyp
Wohngebäude
Baujahr laut Energieausweis
1979
Wesentliche Energieträger
Gas
Gültigkeit
05.02.2026 bis 04.02.2036
Effizienzklasse
B
Endenergieverbrauch
68,20 kWh/(m²·a)
Weitere Energiedaten
Haustyp
Massivhaus
Energieträger
Gas
Heizungsart
offener Kamin, Zentralheizung
Details
Objektbeschreibung
Dieses charmante, massiv gebaute Einfamilienhaus aus dem Jahr 1979 überzeugt durch seine außergewöhnliche Lage direkt am Waldrand des Wieters in Northeim. Eingebettet in ein großzügiges, besonderes Grundstück eröffnet sich ein traumhafter Fernblick über das Leinetal - ein Ort, an dem Ruhe, Natur und Wohnqualität harmonisch...
Ausstattung
Individuelle Ausstattungsmerkmale:
- Rollläden-teilweise elektrisch
- SAT-TV
Ausstattung:
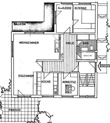
Erdgeschoss:
. Eingangsbereich und großzügige Diele
. Gästezimmer oder Büro
. Küche
. Wohn- und Esszimmer mit Kamin, Zugang zur Terrasse und zum Balkon
. Gäste-WC
. Modernes Duschbad...
Weitere Informationen
Sonstiges
. Wohngebäudeversicherung: 2.398,49 EUR / Jahr
. Grundsteuer (ab 2026): 426,25 EUR / Jahr
. Erbbaurecht der Klosterkammer Hannover:
o Laufzeit bis 30.09.2056
o Aktueller Erbbauzins: 2.119,88 EUR / Jahr
o Vorzeitige Verlängerung zu gleichen Bedingungen (Stand 02/2026)...
Anbieter der Immobilie

Online-ID: 2nybr5f
Referenznummer: 4260
Finde Angebote wie dieses
Hier geht es zu unserem Impressum, den Allgemeinen Geschäftsbedingungen, den Hinweisen zum Datenschutz und nutzungsbasierter Online-Werbung.