

HONNEF Immobilien
Frau Mandy Brendel
036 ···
Nr. anzeigenPreise & Kosten
nicht in Warmmiete enthalten
Kaution
2.910,00
Warum sehe ich diese Anzeige? – Du siehst diese Anzeige basierend auf Ihrer Navigation auf unserer Website und den Suchkriterien, die du verwendet hast.
Lage
Die Wohnung liegt in bester Innenstadtlage von Gotha direkt am historischen Hauptmarkt. Die zentrale und zugleich repräsentative Lage bietet eine hervorragende Infrastruktur. Einkaufsmöglichkeiten, Cafés, Restaurants, Ärzte, Apotheken sowie öffentliche Einrichtungen befinden sich in unmittelbarer Nähe und sind bequem zu Fuß...
Die Wohnung
Bezug
ab sofort
Wohnanlage
Energie & Heizung
Warum sehe ich diese Anzeige? – Du siehst diese Anzeige basierend auf Ihrer Navigation auf unserer Website und den Suchkriterien, die du verwendet hast.
Weitere Energiedaten
Energieträger
Gas
Heizungsart
Zentralheizung
Details
Objektbeschreibung
Kurzbeschreibung
Stilvoll Wohnen am Gothaer Hauptmarkt
Objekt
Die angebotene Wohnung befindet sich in einem gepflegten Wohn- und Geschäftshaus direkt am Hauptmarkt.
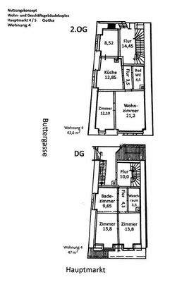
Die besondere Maisonettewohnung erstreckt sich über das zweite Obergeschoss, sowie das Dachgeschoss des Hauses. Beide Ebenen sind bequem vom...
Ausstattung
Die Wohnung überzeugt durch ihre besondere Raumaufteilung über zwei Ebenen und die hochwertige Verbindung durch eine Holz Wendeltreppe.
Das großzügige Wohnzimmer mit Stuckdecke stellt ein besonderes Highlight dar und unterstreicht den stilvollen Charakter der Immobilie.
Die große Küche mit offenem Essbereich...
Preisinformation
Nettokaltmiete: 970,00 EUR
Weitere Informationen
Sonstiges
Befeuerung/Energieträger: Gas
Heizungsart: Zentralheizung
I
Stichworte
Stellplatz vorhanden, Anzahl der Schlafzimmer: 2, Anzahl der Badezimmer: 1, 4 Etagen
Anbieter der Immobilie

Online-ID: 2nybg5t
Referenznummer: 502125
Finde Angebote wie dieses
Hier geht es zu unserem Impressum, den Allgemeinen Geschäftsbedingungen, den Hinweisen zum Datenschutz und nutzungsbasierter Online-Werbung.