
ohne-makler.net - Immobilien selbst vermarkten
Privat von Karl Werner Schmitz
Kontaktiere den Anbieter schriftlich, es ist keine Telefonnummer hinterlegt.
Preise & Kosten
Provision für Käufer
provisionsfrei
Lage
Die Immobilie befindet sich in ruhiger Lage eines kleinen Ortsteils der Gemeinde Much - eingebettet in eine naturnahe Landschaft aus Wiesen, Feldern und Wäldern. Hier genießen Sie die Ruhe des Landlebens und gleichzeitig die Sicherheit und Verlässlichkeit einer gewachsenen Dorfgemeinschaft.
Leben, wo die Welt noch in...
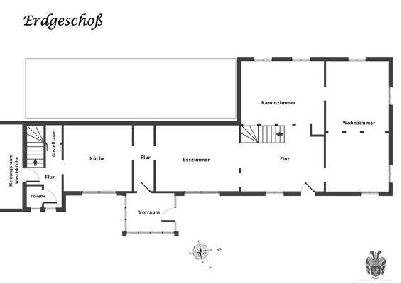
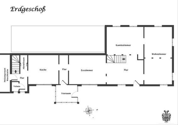
Das Haus
Kategorie
Bauernhaus
Baujahr
1703
Bezug
nach Absprache
Energie & Heizung
Warum sehe ich diese Anzeige? – Du siehst diese Anzeige basierend auf Ihrer Navigation auf unserer Website und den Suchkriterien, die du verwendet hast.
Energieausweistyp
Bedarfsausweis
Gebäudetyp
Wohngebäude
Effizienzklasse
G
Endenergiebedarf
220,00 kWh/(m²·a)
Weitere Energiedaten
Energieträger
Öl
Heizungsart
offener Kamin, Zentralheizung
Details
Objektbeschreibung
Historisches Haupthaus einer reizvollen Hofanlage, deren Ursprung um 1700 liegt.
Hier verbinden sich hoher Wohnkomfort, naturnahe Ruhe und die Sicherheit einer gewachsenen dörflichen Nachbarschaft. Einfach eine hohe Lebensqualität!
Eine Kauf- oder Nutzungsoption der Nebengebäude ist...
Ausstattung
Terrasse, Garten, Keller, Vollbad, Duschbad, Einbauküche, Gäste-WC, Kamin, Teppichboden, Fliesen, Sonstiges (s. Text)
Bemerkungen:
Die gesamte Hofanlage umfasst insgesamt drei Wohnhäuser. Die Beheizung aller Gebäude erfolgt zentral über eine im Haupthaus installierte Öl-Zentralheizung.
Das Haupthaus wird...
Preisinformation
1 Stellplatz
Weitere Informationen
Sonstiges
Heizungsart: Zentralheizung
Energieträger: Öl
Makleranfragen nicht erwünscht. Nach § 7 UWG sind unaufgeforderte Kontaktaufnahmen durch Makler ohne ausdrückliche Einwilligung des Empfängers verboten!
ohne-makler (OM) ist weder Anbieter noch Vermittler der Immobilie. OM betreibt eine Plattform...
Anbieter der Immobilie
ohne-makler.net - Immobilien selbst vermarkten
Humboldtstr. 25 A, 21509 Glinde
Privat von Karl Werner Schmitz
Dein Ansprechpartner
Kontaktiere den Anbieter schriftlich, es ist keine Telefonnummer hinterlegt.
Online-ID: 2ny7h5q
Referenznummer: 390170
Finde Angebote wie dieses
Hier geht es zu unserem Impressum, den Allgemeinen Geschäftsbedingungen, den Hinweisen zum Datenschutz und nutzungsbasierter Online-Werbung.