
Aller Weser Immobilien GmbH & Co.KG
Herr Wilken Dankleff
004 ···
Nr. anzeigenPreise & Kosten
Provision für Käufer
3,57% inkl. MwSt.
Lage
Das Mehrfamilienhaus befindet sich in einer ruhigen, gewachsenen Wohnlage im beliebten Flecken Langwedel im Landkreis Verden. Die Umgebung zeichnet sich durch eine angenehme Mischung aus Ein- und Mehrfamilienhäusern, gepflegten Gärten und viel Grün aus. Trotz der ruhigen Lage sind sämtliche Einrichtungen des täglichen Bedarfs...
Die Wohnung
Bezug
01.06.2026
Wohnanlage
Energie & Heizung
Warum sehe ich diese Anzeige? – Du siehst diese Anzeige basierend auf Ihrer Navigation auf unserer Website und den Suchkriterien, die du verwendet hast.
Energieausweistyp
Bedarfsausweis
Gebäudetyp
Wohngebäude
Wesentliche Energieträger
GAS
Gültigkeit
bis 18.02.2036
Effizienzklasse
A
Endenergiebedarf
49,20 kWh/(m²·a)
Weitere Energiedaten
Energieträger
Gas
Heizungsart
Zentralheizung
Details
Objektbeschreibung
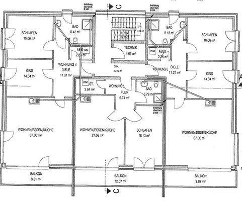
Diese helle 3-Zimmer-Wohnung im Obergeschoss überzeugt durch ihre moderne Architektur, hochwertige Ausstattung und eine harmonische Raumaufteilung. Auf rund 92,41 m² Wohnfläche bietet sie großzügige, lichtdurchflutete Räume und einen klar strukturierten Grundriss, der sowohl für Eigennutzer als auch Kapitalanleger ideal...
Ausstattung
+ Wohnfläche: ca. 92,41 m²
+ Helle, freundliche Räume mit großen Fensterflächen
+ Personenaufzug
+ Modernes Bad mit ebenerdiger Dusche und Badewanne
+ Abstellräume
+ Hochwertige Bodenfliesen in den Wohn- und Sanitärbereichen
+ Weiße Innentüren und pflegeleichte...
Preisinformation
Ist-Mieteinnahmen pro Jahr: 12.000,00 EUR
Weitere Informationen
Sonstiges
Die Aller Weser Immobilien GmbH & Co.KG hat sich auf den Verkauf und die Vermietung von hochwertigen Immobilien spezialisiert. Seit Jahren sind wir erfolgreich am Immobilienmarkt tätig. Wir verkaufen und vermieten exklusive und außergewöhnliche Objekte in den bevorzugten Lagen von Achim, Verden, Bremen &...
Anbieter der Immobilie
Aller Weser Immobilien GmbH & Co.KG
Bahnhofstrasse 52, 28832 Achim
Online-ID: 2ny7g5m
Referenznummer: WDWG006
Finde Angebote wie dieses
Hier geht es zu unserem Impressum, den Allgemeinen Geschäftsbedingungen, den Hinweisen zum Datenschutz und nutzungsbasierter Online-Werbung.