
reichmann immobilien e.K.
Herr Daniel Giusa
004 ···
Nr. anzeigenPreise & Kosten
Provision für Käufer
3,57% inkl. MwSt.
Lage
Das Anwesen befindet sich in Hüfingen, einer traditionsbewussten Stadt im Schwarzwald-Baar-Kreis, die durch ihre verkehrsgünstige Lage und solide Infrastruktur überzeugt. Hüfingen liegt zwischen Donaueschingen, Bräunlingen und dem Hochschwarzwald und ist ein wichtiger Wirtschafts- und Gewerbestandort der Region.
Das...
Das Haus
Baujahr
1965
Bezug
nach Absprache
Energie & Heizung
Warum sehe ich diese Anzeige? – Du siehst diese Anzeige basierend auf Ihrer Navigation auf unserer Website und den Suchkriterien, die du verwendet hast.
Energieausweistyp
Bedarfsausweis
Gebäudetyp
Wohngebäude
Baujahr laut Energieausweis
1965
Wesentliche Energieträger
HOLZ
Gültigkeit
bis 11.09.2035
Effizienzklasse
F
Endenergiebedarf
180,00 kWh/(m²·a)
Weitere Energiedaten
Energieträger
Holz
Heizungsart
Zentralheizung
Details
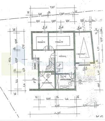
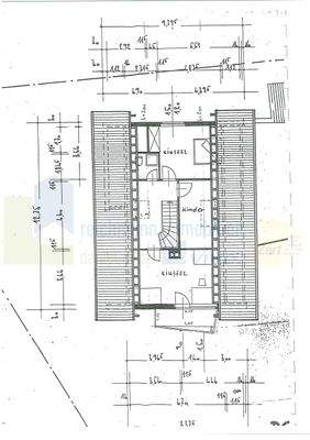
Objektbeschreibung
Dieses besondere Ensemble aus Wohnhaus, Werkhalle, 30kw/p Photovoltaikanlage und großzügigem Grundstück mit insgesamt 2.423 m² Grundstücksfläche mit vielfältigen Nutzungsmöglichkeiten verbindet Wohnen, Arbeiten und Kapitalanlage an einem Standort.
Das Wohnhaus wurde klassisch als Einfamilienhaus konzipiert und...
Ausstattung
. Zwei zusammenhängende Flurstücke mit insgesamt 2.423 m² Grundstücksfläche
. Wohnhaus mit ca. 150 m² Wohnfläche auf Erd- und Dachgeschoss verteilt
. Klassisch als Einfamilienhaus konzipiert, aktuell als Zweifamilienhaus genutzt
. Voll unterkellert für zusätzliche Nutzfläche und Stauraum
. Balkon im Dachgeschoss...
Preisinformation
20 Stellplätze
1 Garagenstellplatz
Weitere Informationen
Sonstiges
Sie benötigen eine Finanzierung oder möchten Ihre Konditionen vergleichen? Gerne sind wir Ihnen dabei behilflich!
Alle Angaben wurden vom Eigentümer erteilt. Eine Haftung für deren Richtigkeit und Vollständigkeit kann deshalb nicht übernommen werden. Um Ihre Anfrage zu Ihrer Zufriedenheit bearbeiten zu...
Anbieter der Immobilie
reichmann immobilien e.K.
Herdstr. 19, 78166 Donaueschingen
Online-ID: 2ny585w
Referenznummer: A2472
Finde Angebote wie dieses
Hier geht es zu unserem Impressum, den Allgemeinen Geschäftsbedingungen, den Hinweisen zum Datenschutz und nutzungsbasierter Online-Werbung.