Huth Immobilien

Herr Gerhard Huth

Neubauwohnung in idyllischer Lage mit Terrasse

€ 496.000
Kaufpreis
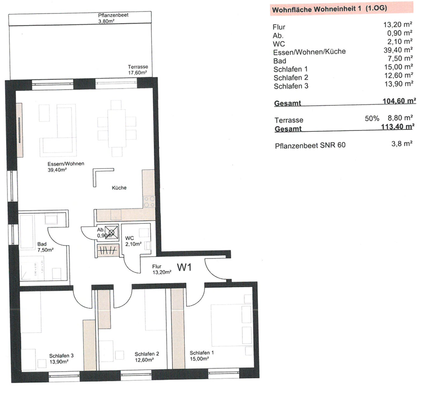
113,55 m²
Wohnfläche ca.
4
Zimmer

Der Anbieter dieses Objekts hat gegenüber der AVIV Germany GmbH als Betreiber dieses Online-Marktplatzes erklärt, nicht als Unternehmer im Sinne des § 1 KSchG zu handeln. Die im Verbraucherschutzrecht der Union verankerten Verbraucherrechte (insbesondere Informationspflichten und Rücktritts- bzw. Widerrufsrechte) finden auf den Vertrag zwischen dem Anbieter des Objekts und Ihnen (dem Interessenten) keine Anwendung.

Gewerblicher Anbieter

Der Anbieter dieses Objekts hat gegenüber der AVIV Germany GmbH als Betreiber dieses Online-Marktplatzes erklärt, als Unternehmer im Sinne des § 1 KSchG zu handeln.

AdresseStraße nicht freigegeben
63825 Schöllkrippen 
Auf Karte ansehen

Preise & Kosten

Kaufpreis € 496.000

Provision für Käufer

Provisionsfrei

Lage

Die Marktgemeinde Schöllkrippen mit knapp 5.000 Einwohnern vereint auf angenehme Weise das, was man im Alltag wirklich braucht - und bietet darüber hinaus einen hohen Freizeit- und Erholungswert. Vor Ort finden sich Supermärkte, eine traditionelle Bäckerei, eine Konditorei mit Café, verschiedene Gaststätten, eine...

Mehr anzeigen

Die Wohnung

Wohnungslage

1. Geschoss

  • Gäste-WC
  • Terrasse
  • barrierefrei
  • Zustand: Erstbezug
  • Weitere Räume: Abstellraum

Wohnanlage

  • Baujahr: 2025
  • Personenaufzug

Details

Objektbeschreibung

Die beiden freistehenden Gebäude befinden sich in bester Wohnlage zentral in Schöllkrippen. Die großzügig geschnittenen Wohnungen in unterschiedlicher Größe sind komfortabel und sehr exklusiv ausgestattet.
Alle Wohnungen verfügen über eine Terrasse, Loggia oder einen Balkon. Pkw-Stellplätze bzw. Garagen werden entsprechend...

Mehr anzeigen

Ausstattung

Die hochwertige Innenausstattung ist natürlich frei wählbar, genauso wie die Einrichtung im Bad (Badewanne und/oder Dusche) durch diese individuellen Anpassungen können Sie Ihre Traumwohnung perfekt nach Ihren Wünschen gestalten. Große, dreifach verglaste Fenster in elegantem Weiß-Anthrazit-Look lassen viel Licht hinein und...

Mehr anzeigen

Weitere Informationen

Stichworte
Anzahl der Schlafzimmer: 3, Anzahl der Badezimmer: 1, Anzahl Terrassen: 1, Balkon-Terrassen-Fläche: 17,60 m², Bundesland: Bayern

Anbieter der Immobilie

Partner

Huth Immobilien

Elisenstraße 33, 63739 Aschaffenburg

user

Herr Gerhard Huth

Dein Ansprechpartner

Anbieter-Website Anbieter-Profil Anbieter-Impressum

Online-ID: 2ny4q5r

Referenznummer: WE-1013

Finde Angebote wie dieses

imageimageimage

Hier geht es zu unserem Impressum, den Allgemeinen Geschäftsbedingungen, den Hinweisen zum Datenschutz und nutzungsbasierter Online-Werbung.