

Fabian Immobilien
Herr Fabian Thiemann
041 ···
Nr. anzeigenPreise & Kosten
Provision für Käufer
3,57% inkl. MwSt. (19%). Fällig mit Kaufvertragsabschluss.
Lage
Die Immobilie befindet sich in ruhiger und dennoch zentraler Lage von Stade. Die Kombination aus angenehmem Wohnumfeld und hervorragender Infrastruktur macht diesen Standort besonders attraktiv.
Die Bundesstraße B73 ist in nur etwa einer Autominute erreichbar und bietet eine schnelle Verbindung Richtung Hamburg sowie...
Das Haus
Kategorie
Einfamilienhaus
Baujahr
2001
Energie & Heizung
Warum sehe ich diese Anzeige? – Du siehst diese Anzeige basierend auf Ihrer Navigation auf unserer Website und den Suchkriterien, die du verwendet hast.
Energieausweistyp
Verbrauchsausweis
Gebäudetyp
Wohngebäude
Baujahr laut Energieausweis
2026
Gültigkeit
04.03.2026 bis 03.03.2036
Effizienzklasse
B
Endenergieverbrauch
72,30 kWh/(m²·a)
Details
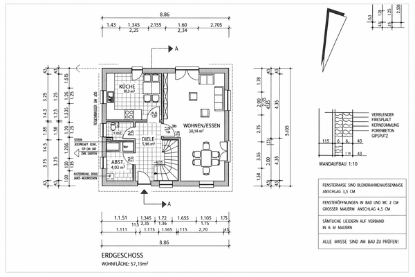
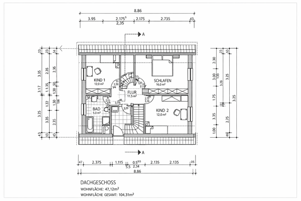
Objektbeschreibung
Modernes Einfamilienhaus in ruhiger und zentraler Lage von Stade
Dieses gepflegte Einfamilienhaus wurde ca. im Jahr 2001 von der Firma Mittelstädt Bau errichtet und überzeugt durch eine durchdachte Raumaufteilung sowie eine ruhige und dennoch zentrale Wohnlage in Stade.
Mit einer Wohnfläche von ca. 104,31...
Ausstattung
- Einfamilienhaus in massiver Bauweise (Mittelstädt Bau, Baujahr ca. 2001)
- ca. 104,31 Quadratmeter Wohnfläche
- Vier Zimmer
- Drei Schlafzimmer
- Großzügiges Wohn- und Esszimmer
- Familienfreundlicher Grundriss
- Kunststofffenster in Weiß
- Energiesparverglasung
- Roter Verblender (pflegeleichte...
Preisinformation
1 Carportplatz
Weitere Informationen
Sonstiges
Alle Angaben ohne Gewähr. Die Inhalte dieses Exposés stammen vom Anbieter. Für Daten Dritter übernehmen wir keine Haftung. Das Angebot ist nur für Sie bestimmt und darf nicht an Dritte weitergegeben werden. Eine Weitergabe verpflichtet zur Zahlung von Schadenersatz, falls ein Dritter dadurch zum Vertragsabschluss...
Dokumente
Anbieter der Immobilie
Fabian Immobilien
Ostmarkstr. 10, 21680 Stade

Online-ID: 2ny295y
Referenznummer: 384
Finde Angebote wie dieses
Hier geht es zu unserem Impressum, den Allgemeinen Geschäftsbedingungen, den Hinweisen zum Datenschutz und nutzungsbasierter Online-Werbung.