
Danhaus - Paulo Granja Handelsvertretung für die Danhaus Deutschland GmbH
Paulo Granja
+49 ···
Nr. anzeigenPreise & Kosten
Provision für Käufer
provisionsfrei
Lage
Das Grundstück befindet sich in einer attraktiven Lage und bietet ideale Voraussetzungen für den Bau Ihres zukünftigen Zuhauses. Die Umgebung überzeugt durch ihre gute Erreichbarkeit und angenehme Wohnqualität. Gern besprechen wir alle Details in einem persönlichen Termin.
Das Haus
Kategorie
Einfamilienhaus
Energie & Heizung
Warum sehe ich diese Anzeige? – Du siehst diese Anzeige basierend auf Ihrer Navigation auf unserer Website und den Suchkriterien, die du verwendet hast.
Weitere Energiedaten
Heizungsart
Fußbodenheizung
Details
Objektbeschreibung
WELCOME HOME. WELCOME TO YOUR FUTURE.
Dein Zuhause ist mehr als vier Wände - es ist dein Rückzugsort, dein Investment, dein neuer Lebensabschnitt.
White&Black macht Wohneigentum bezahlbar, modern und flexibel.
Jetzt ist der richtige Moment, um anzukommen.
Ausstattung
THINK BLACK - All in.
- Schlüsselfertig & sofort bezugsbereit - ohne zusätzlichen Aufwand
- Kompletter Innenausbau - keine Handwerkersuche, kein Planungsstress
- Durchdachte Raumaufteilung - moderne Wohnkonzepte für jede Lebensphase
- Innovative Haustechnik - zukunftssicheres Wohnen mit höchster...
Weitere Informationen
Sonstiges
Vereinbare einen persönlichen Beratungstermin, um über Deinen Haustraum und das angebotene Objekt zu sprechen.
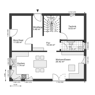
Bitte beachte, dass die dargestellten Bilder und Grundrisse nur beispielhaft sind und unter Umständen Sonderbauteile enthalten, die nicht im angegebenen Preis enthalten sind.
Hab außerdem bitte...
Anbieter der Immobilie
Danhaus - Paulo Granja Handelsvertretung für die Danhaus Deutschland GmbH
Porschestraße 10, 41564 Kaarst
Online-ID: 2nxyw5e
Referenznummer: JB-WB-28606
Finde Angebote wie dieses
Hier geht es zu unserem Impressum, den Allgemeinen Geschäftsbedingungen, den Hinweisen zum Datenschutz und nutzungsbasierter Online-Werbung.