

Wohntraumfinder GmbH
Herr Gunnar Andrä
017 ···
Nr. anzeigenPreise & Kosten
Provision für Käufer
3,57% inkl. 19% USt. vom Kaufpreis 145.000€ (= 5.176,50€); fällig 7 Tage nach Notartermin inkl. MwSt.
Lage
Die Eigentumswohnung befindet sich im beliebten Chemnitzer Stadtteil Siegmar, einer gewachsenen und ruhigen Wohnlage im Westen der Stadt.
Das Wohnumfeld ist geprägt von gepflegten Mehrfamilienhäusern, Einfamilienhäusern sowie viel Grün und bietet eine angenehme, familienfreundliche Atmosphäre.
In unmittelbarer...
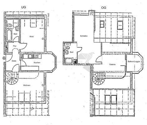
Die Wohnung
Kategorie
Maisonette
Wohnungslage
3. Geschoss
Bezug
01.05.2026
Wohnanlage
Energie & Heizung
Warum sehe ich diese Anzeige? – Du siehst diese Anzeige basierend auf Ihrer Navigation auf unserer Website und den Suchkriterien, die du verwendet hast.
Energieausweistyp
Verbrauchsausweis
Gebäudetyp
Wohngebäude
Baujahr laut Energieausweis
1995
Wesentliche Energieträger
ERDGAS_SCHWER
Gültigkeit
bis 17.07.2028
Effizienzklasse
D
Endenergieverbrauch
107,00 kWh/(m²·a)
Weitere Energiedaten
Energieträger
Gas
Heizungsart
Zentralheizung
Details
Objektbeschreibung
Diese moderne 3-Zimmer-Maisonette-Eigentumswohnung befindet sich in einem gepflegten Mehrfamilienhaus aus dem Baujahr 1995 und überzeugt durch ihre durchdachte Raumaufteilung sowie ihren besonderen Wohncharakter auf zwei Ebenen.
Das Haus umfasst lediglich 8 Wohneinheiten und bildet eine Hauseigentümergemeinschaft mit...
Ausstattung
Die 3-Raum-Wohnung verfügt über eine Wohnfläche von ca. 84 m², die sich großzügig auf zwei Ebenen verteilt und ein besonderes Wohngefühl im Maisonette-Stil bietet.
Ein sonniger Balkon sowie zwei Badezimmer unterstreichen den hohen Wohnkomfort dieser Einheit. Die Ebenen sind über eine stilvolle Echtholztreppe...
Preisinformation
1 Stellplatz
Weitere Informationen
Stichworte
Anzahl der Schlafzimmer: 2, Anzahl der Badezimmer: 2, Anzahl Balkone: 1, 4 Etagen, Distanz zum Kindergarten: 0.11, Distanz zur Grundschule: 0.98, Distanz zum Gymnasium: 4.84, Distanz zur Autobahn: 1.15, Distanz vom Zentrum: 6.35
Anbieter der Immobilie
Wohntraumfinder GmbH
Limbacher Str. 345, 09117 Chemnitz

Online-ID: 2nxyj5p
Referenznummer: C_J44a_08
Finde Angebote wie dieses
Hier geht es zu unserem Impressum, den Allgemeinen Geschäftsbedingungen, den Hinweisen zum Datenschutz und nutzungsbasierter Online-Werbung.