
Bausie GmbH
Tim Tillner
055 ···
Nr. anzeigenPreise & Kosten
Kaution
1.833,00
Warum sehe ich diese Anzeige? – Du siehst diese Anzeige basierend auf Ihrer Navigation auf unserer Website und den Suchkriterien, die du verwendet hast.
Lage
Das große Grundstück reicht bis an das Weserufer. Sie haben eine herrliche Aussicht.
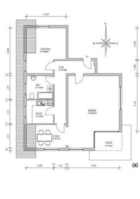
Die Wohnung
Wohnungslage
1. Geschoss
Bezug
sofort
Wohnanlage
Energie & Heizung
Warum sehe ich diese Anzeige? – Du siehst diese Anzeige basierend auf Ihrer Navigation auf unserer Website und den Suchkriterien, die du verwendet hast.
Weitere Energiedaten
Energieträger
Gas
Heizungsart
Zentralheizung
Details
Objektbeschreibung
Das Wohnhaus verfügt über 6 Wohneinheiten.
3-fach isolierte Fenster, Gas-Zentralheizung mit Brennwertkessel und zentraler Warmwasserversorgung. Jeder Einheit steht ein Kellerraum zur Verfügung, hier haben Sie weiteren Platz für sperrige Gegenstände oder einfach nur Raum zum Zwischenlagern von Altpapier etc.
Ausstattung
Tageslichtbadezimmer mit Badewanne, Dusche und WC, Waschmaschinenplatz vorhanden.
Zentraler Flur über den Sie alle Räume betreten können.
Preisinformation
Nettokaltmiete: 611,00 EUR
Weitere Informationen
Energiepass
Gültig bis: 02-2035
Stichworte
beheizbare Fläche: 94,00 m²
Anbieter der Immobilie
Online-ID: 2nxwn5y
Referenznummer: 301.5166.1004
Finde Angebote wie dieses
Hier geht es zu unserem Impressum, den Allgemeinen Geschäftsbedingungen, den Hinweisen zum Datenschutz und nutzungsbasierter Online-Werbung.