

Tauschwohnung GmbH
Herr John Weinert
+49 ···
Nr. anzeigenPreise & Kosten
zzgl. Nebenkosten
Zahlungsfähigkeit nachweisen - KSV1870 InfoPass zur Besichtigung mitnehmen info
Warum sehe ich diese Anzeige? – Du siehst diese Anzeige basierend auf Ihrer Navigation auf unserer Website und den Suchkriterien, die du verwendet hast.
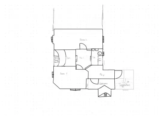
Die Wohnung
Wohnungslage
4. Geschoss (Dachgeschoss)
Details
Objektbeschreibung
Es handelt es sich hierbei um ein Tauschangebot. (Anbieter-ID: 372887)
Schöne Dachgeschosswohnung mit 2,5 Zimmern.
Direkte Einkaufsmöglichkeiten vor der Tür und 15 min Fußweg bis auf die Altstadtinsel.
Die Wohnung hat zwei große Zimmer und ein kleines was wir als Gästezimmer nutzen. Das Highlight...
Anbieter der Immobilie

Online-ID: 2nxsx5z
Referenznummer: 372887
Finde Angebote wie dieses
Hier geht es zu unserem Impressum, den Allgemeinen Geschäftsbedingungen, den Hinweisen zum Datenschutz und nutzungsbasierter Online-Werbung.