
Harald Schlee & Partner Immobilien-Finanzierungen-Versicherung
Herr/Frau Schlee
038 ···
Nr. anzeigenPreise & Kosten
Provision für Käufer
Die Maklerprovision beträgt für Verkäufer + Käufer je 3,57% inkl. MwSt.
Lage
Das Einfamilienhaus, befindet sich im Ortsteil Sandkrug, der Gemeinde Bandenitz, zwischen Hagenow ca. 13 Km und Schwerin ca. 18 Km.
Das Haus
Kategorie
Einfamilienhaus
Baujahr
1980
Bezug
sofort
Derzeitige Nutzung
frei
Energie & Heizung
Warum sehe ich diese Anzeige? – Du siehst diese Anzeige basierend auf Ihrer Navigation auf unserer Website und den Suchkriterien, die du verwendet hast.
Energieausweistyp
Verbrauchsausweis
Gebäudetyp
Wohngebäude
Baujahr laut Energieausweis
1980
Wesentliche Energieträger
Öl
Gültigkeit
16.07.2025 bis 15.07.2035
Endenergieverbrauch
97,50 kWh/(m²·a)
Details
Objektbeschreibung
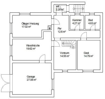
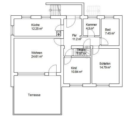
1.857 m² großen Grundstück 1980 erbaute Bungalow, hat eine Wohn- Nutzfläche von ca. 262,41 m². Im Erdgeschoß ist ein Flur, die Küche mit EBK, das Wohnzimmer mit Terrasse, ein Kinderzimmer, das Schlafzimmer, das Bad, eine Kammer und das Treppenhaus untergebracht. Im Kellergeschoß ist ein Flur, ein Gästezimmer, eine Kammer, ein...
Weitere Informationen
Wir bitten Sie um Verständnis, dass wir nur vollständige Anfragen mit Namen, Anschrift und Telefonnummer beantworten können. Dieses Angebot beruht auf Angaben des Verkäufers und nach bestem Wissen. Irrtum und Zwischenverkauf vorbehalten. Dieses Exposé ist eine Vorinformation, als Rechtsgrundlage gilt allein der notariell...
Anbieter der Immobilie
Harald Schlee & Partner Immobilien-Finanzierungen-Versicherung
Lange Straße 96, 19230 Hagenow
Online-ID: 2nxrh5q
Referenznummer: 030725
Finde Angebote wie dieses
Hier geht es zu unserem Impressum, den Allgemeinen Geschäftsbedingungen, den Hinweisen zum Datenschutz und nutzungsbasierter Online-Werbung.