
Evernest GmbH
Pierre Büchner
+49 ···
Nr. anzeigenPreise & Kosten
Provision für Käufer
5.95 inkl. MwSt.
Bei Abschluss eines notariellen Kaufvertrages ist eine Käuferprovision vom Käufer in Höhe von 5.95 % inkl. MwSt. aus dem Kaufpreis fällig.
Lage
Das charmante Fachwerkhaus befindet sich im idyllischen Ortsteil Wietze der Gemeinde Bissendorf, in einer Sackgasse - einer ruhigen und familienfreundlichen Anliegerstraße mit gehobenem Wohnumfeld. Die Nachbarschaft ist geprägt von großzügigen Einfamilienhäusern und gepflegten Gärten - ein idealer Rückzugsort für Familien...
Das Haus
Kategorie
Einfamilienhaus
Baujahr
1982
Energie & Heizung
Warum sehe ich diese Anzeige? – Du siehst diese Anzeige basierend auf Ihrer Navigation auf unserer Website und den Suchkriterien, die du verwendet hast.
Energieausweistyp
Verbrauchsausweis
Gebäudetyp
Wohngebäude
Effizienzklasse
C
Endenergieverbrauch
100,00 kWh/(m²·a) - Warmwasser enthalten
Weitere Energiedaten
Energieträger
Gas
Details
Objektbeschreibung
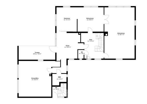
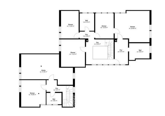
Dieses wunderschöne Fachwerkhaus wurde als Zweifamilienhaus gebaut und bietet Ihnen auf einer Grundstücksfläche von 1935 m² pure Wohnqualität. Mit insgesamt 348 m² Wohnfläche verteilt auf 9,5 Zimmer und über zwei Etagen hinweg, bietet diese Immobilie ausreichend Platz für die ganze Familie. Dieses Traumhaus bietet Ihnen...
Ausstattung
-9,5 Zimmer
-Fußbodenheizung
-348 m² Wohnfläche
-separate Anliegerwohnung
-Carport mit Doppelstellplatz
-sanierter Keller aus 2025 (weiße Wanne)
Weitere Informationen
Stichworte
Carport vorhanden, Anzahl Terrassen: 1, 2 Etagen
Anbieter der Immobilie
Online-ID: 2nxr45y
Referenznummer: L-QDOZ8EF
Finde Angebote wie dieses
Hier geht es zu unserem Impressum, den Allgemeinen Geschäftsbedingungen, den Hinweisen zum Datenschutz und nutzungsbasierter Online-Werbung.