
Dr. Schmidt-Bovendeert Immobilien OHG
Herr Maximilian Fein
004 ···
Nr. anzeigenPreise & Kosten
zzgl. Nebenkosten
Provision für Mieter
Bitte beachte, das Angebot kann bei Vertragsabschluss die Zahlung einer Provision beinhalten. Weitere Informationen erhältst Du vom Anbieter.
Warum sehe ich diese Anzeige? – Du siehst diese Anzeige basierend auf Ihrer Navigation auf unserer Website und den Suchkriterien, die du verwendet hast.
Lage
Die angebotenen Hallen befinden sich in der charmanten Stadt Bad Marienberg, gelegen im Westerwaldkreis in Deutschland. Diese Mittelgebirgsregion ist bekannt für ihre malerische Landschaft und bietet eine ideale Mischung aus ländlicher Ruhe und guter Infrastruktur. Die Immobilie befindet sich in einer Gewerbezone, die sich...
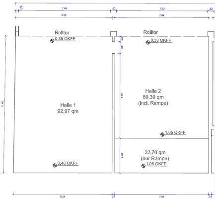
Die Industriefläche
Kategorie
Lagerhalle
Energie & Heizung
Warum sehe ich diese Anzeige? – Du siehst diese Anzeige basierend auf Ihrer Navigation auf unserer Website und den Suchkriterien, die du verwendet hast.
Weitere Energiedaten
Energieträger
Öl
Details
Objektbeschreibung
Diese gepflegten Hallen in Bad Marienberg bieten ideale Voraussetzungen für Lager oder Parkflächen. In massiver Bauweise errichtet, überzeugen sie durch ihre solide Substanz und eine funktionale Ausführung, die auf einen reibungslosen Lagerablauf ausgerichtet sind. Zudem eignen sich die Hallen optimal als Stellplatz für Ihr...
Ausstattung
- 3x Starkstrom
- Boden: Beton
- Befeuerung: Öl
Weitere Informationen
Sonstiges
Die in unserem Exposé enthaltenen Aussagen basieren ausschließlich auf Informationen, die uns vom Verkäufer zur Verfügung gestellt wurden. Wir übernehmen daher keine Gewähr für die Vollständigkeit und Richtigkeit der Angaben. Das Immobilienangebot ist freibleibend. Irrtum und Zwischenverkauf bleiben...
Anbieter der Immobilie
Online-ID: 2nxpr5y
Referenznummer: 4696
Finde Angebote wie dieses
Hier geht es zu unserem Impressum, den Allgemeinen Geschäftsbedingungen, den Hinweisen zum Datenschutz und nutzungsbasierter Online-Werbung.