
EVKL GmbH
Engel & Völkers Zweibrücken
+49 ···
Nr. anzeigenPreise & Kosten
Provision für Käufer
3.57 % inkl. gesetzl. MwSt.
Der Maklervertrag mit der EVKL GmbH kommt durch die Beauftragung der Maklertätigkeit in Textform (z.B. per E-Mail) zustande. Weitere Informationen siehe Provisionshinweis.
Lage
Die Immobilie befindet sich in Vinningen, einer idyllischen Ortsgemeinde im Landkreis Südwestpfalz in Rheinland-Pfalz.
Die Straße ist geprägt von gepflegten Ein- und Zweifamilienhäusern in angenehmer, gewachsener Wohnstruktur.
Die verkehrsberuhigte Umgebung sorgt für ein ruhiges und familienfreundliches Wohnumfeld mit...
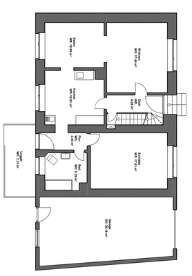
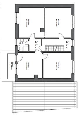
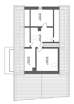
Das Haus
Kategorie
Einfamilienhaus
Baujahr
1909
Energie & Heizung
Warum sehe ich diese Anzeige? – Du siehst diese Anzeige basierend auf Ihrer Navigation auf unserer Website und den Suchkriterien, die du verwendet hast.
Energieausweistyp
Bedarfsausweis
Gebäudetyp
Wohngebäude
Baujahr laut Energieausweis
1909
Gültigkeit
seit 26.02.2026
Effizienzklasse
G
Endenergiebedarf
231,40 kWh/(m²·a)
Details
Objektbeschreibung
Dieses großzügige Einfamilienhaus in Vinningen vereint historischen Charme mit vielfältigen Nutzungsmöglichkeiten und solidem Entwicklungspotenzial.
Das im Jahr 1909 errichtete Wohnhaus wurde 1963 aufgestockt. Aus dieser Zeit stammen die grundlegende Erneuerung der Elektrik sowie der Heizungsanlage, die Anfang der 2000er...
Weitere Informationen
Provisionshinweis
3.57 % inkl. gesetzl. MwSt.
Der Maklervertrag mit der EVKL GmbH kommt durch die Beauftragung der Maklertätigkeit in Textform (z.B. per E-Mail) zustande. Die Courtage beträgt für beide Parteien (Eigentümer und Käufer) jeweils 3,57 % des Kaufpreises (inkl. der gesetzlichen MwSt.). Liegt der notarielle...
Anbieter der Immobilie
EVKL GmbH
Eisenbahnstraße 51 , 67655 Kaiserslautern
Online-ID: 2nxpf5u
Referenznummer: I-047Z5S-W-047Z5S
Finde Angebote wie dieses
Hier geht es zu unserem Impressum, den Allgemeinen Geschäftsbedingungen, den Hinweisen zum Datenschutz und nutzungsbasierter Online-Werbung.