

IPN Immobilien GmbH
Herr Christian Konarski
+49 ···
Nr. anzeigenPreise & Kosten
Provision für Käufer
2,975% inklusive Umsatzsteuer inkl. MwSt.
Lage
Die Doppelhaushälfte befindet sich in ruhiger, familienfreundlicher Lage von Rostock im Wohngebiet "Musknips". Das Umfeld ist geprägt von moderner Einfamilien- und Doppelhausbebauung mit wenig Verkehr - ideal für junge Familien mit Kindern.
Kindergarten, Schulen sowie Einkaufsmöglichkeiten für den täglichen Bedarf sind...
Das Haus
Kategorie
Doppelhaushälfte
Baujahr
2025
Bezug
sofort
Energie & Heizung
Warum sehe ich diese Anzeige? – Du siehst diese Anzeige basierend auf Ihrer Navigation auf unserer Website und den Suchkriterien, die du verwendet hast.
Energieausweistyp
Bedarfsausweis
Gebäudetyp
Wohngebäude
Baujahr laut Energieausweis
2025
Wesentliche Energieträger
UMWELTWAERME
Gültigkeit
bis 01.10.2035
Effizienzklasse
A
Endenergiebedarf
41,58 kWh/(m²·a)
Weitere Energiedaten
Heizungsart
Fußbodenheizung, Luft-/Wasser-Wärmepumpe, Zentralheizung
Details
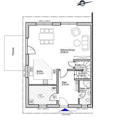
Objektbeschreibung
Diese modern errichtete Neubau-Doppelhaushälfte in Rostock bietet jungen Familien mit und ohne Kindern genau das, was heute wichtig ist: durchdachte Grundrisse, energieeffiziente Technik und ein bezugsfertiges Zuhause ohne Baustress.
Auf rund 130 m² Wohnfläche verteilen sich ein großzügiger Wohn-/Essbereich mit offener...
Ausstattung
Die 2025 fertiggestellte Neubau-Doppelhaushälfte bietet eine hochwertige, moderne Ausstattung und ist sofort bezugsfertig. Außenmauerwerk aus 36,5 cm Porenbeton in Kombination mit Kalksandstein-Innenwänden sorgt für sehr guten Wärme- und Schallschutz. Dreifach verglaste Fenster mit zweifarbigem Profil sowie...
Preisinformation
2 Stellplätze
Weitere Informationen
Sonstiges
Unser Service für Sie als Eigentümer: Wir bewerten Ihre Immobilie kostenfrei und unverbindlich und stehen bis zum erfolgreichen Verkauf als Partner an Ihrer Seite. IPN IMMOBILIEN steht als inhabergeführtes Maklerunternehmen mit seinen Mitarbeitern und Kollegen für die Werte Verlässlichkeit, Diskretion und...
Anbieter der Immobilie
IPN Immobilien GmbH
Grubenstr. 44, 18055 Rostock

Online-ID: 2nxmf57
Referenznummer: 1887
Finde Angebote wie dieses
Hier geht es zu unserem Impressum, den Allgemeinen Geschäftsbedingungen, den Hinweisen zum Datenschutz und nutzungsbasierter Online-Werbung.