
1.) RE/MAX Ihr persönlicher Makler
Herr Rainer Thielking
004 ···
Nr. anzeigenPreise & Kosten
Provision für Käufer
3,57% inkl. gesetzl. MwSt.
Lage
Das Haus befindet sich im begehrten Ortsteil Barkhausen in Porta Westfalica - ruhig, familienfreundlich und gleichzeitig zentral. Direkt bei der Grundschule gelegen, profitieren Sie von kurzen Wegen für Kinder und Familienalltag.
Die Umgebung bietet:
oWeser und Radweg direkt vor der Tür - ideale...
Das Haus
Kategorie
Einfamilienhaus
Baujahr
1896
Energie & Heizung
Warum sehe ich diese Anzeige? – Du siehst diese Anzeige basierend auf Ihrer Navigation auf unserer Website und den Suchkriterien, die du verwendet hast.
Energieausweistyp
Bedarfsausweis
Gebäudetyp
Wohngebäude
Baujahr laut Energieausweis
1896
Wesentliche Energieträger
GAS
Gültigkeit
bis 19.12.2035
Effizienzklasse
G
Endenergiebedarf
225,70 kWh/(m²·a)
Weitere Energiedaten
Haustyp
Massivhaus
Energieträger
Gas
Heizungsart
Zentralheizung
Details
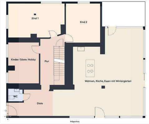
Objektbeschreibung
Familienhaus in Barkhausen: Historischer Charme, moderner Wintergarten
Der Morgen beginnt und Sonnenstrahlen fallen ins Haus und alles erwacht mit einem Lächeln: der Garten, das Zuhause - und Sie genießen den Blick auf den ,Willem' und den Fernsehturm auf dem Jakobsberg.
Willkommen in Ihrem neuen Familienhaus in...
Preisinformation
1 Stellplatz
Weitere Informationen
Sonstiges
Um Ihre Anfrage schnellstmöglich zu bearbeiten, übermitteln Sie uns bitte mit der Anfrage Ihre vollständigen Kontaktdaten mit Anschrift, Telefonnummer und E-Mail Adresse. Wir sind aufgrund gesetzlicher Vorgaben und der Vereinbarung mit dem Eigentümer verpflichtet, die vollständigen Kontaktdaten aufzunehmen...
Anbieter der Immobilie
Online-ID: 2nxlq5n
Referenznummer: 1126-RT2222
Finde Angebote wie dieses
Hier geht es zu unserem Impressum, den Allgemeinen Geschäftsbedingungen, den Hinweisen zum Datenschutz und nutzungsbasierter Online-Werbung.