

Kriemelmann Immobilien GmbH
Frau Brigitte Czerwinski
052 ···
Nr. anzeigenPreise & Kosten
Kaution
4.800,00
Provision für Mieter
Bitte beachte, das Angebot kann bei Vertragsabschluss die Zahlung einer Provision beinhalten. Weitere Informationen erhältst Du vom Anbieter.
Warum sehe ich diese Anzeige? – Du siehst diese Anzeige basierend auf Ihrer Navigation auf unserer Website und den Suchkriterien, die du verwendet hast.
Lage
Repräsentative Gewerbefläche mit maximaler Sichtbarkeit an der Detmolder Straße
Die hier angebotene Erdgeschosseinheit befindet sich in einer strategisch hervorragenden Lage im Bielefelder Osten (Stieghorst). Direkt an der Detmolder Straße (B66) gelegen, profitiert Ihr Unternehmen von einer enormen täglichen Frequenz...
Die Ladenfläche
Baujahr
1959
Bezug
nach Absprache
Energie & Heizung
Warum sehe ich diese Anzeige? – Du siehst diese Anzeige basierend auf Ihrer Navigation auf unserer Website und den Suchkriterien, die du verwendet hast.
Wärme
Strom
Energieausweistyp
Verbrauchsausweis
Gebäudetyp
Nicht-Wohngebäude
Baujahr laut Energieausweis
1959
Wesentliche Energieträger
GAS
Gültigkeit
bis 23.02.2031
Endenergieverbrauch (Wärme)
164,30 kWh/(m²·a)
Endenergieverbrauch (Strom)
42,30 kWh/(m²·a)
Details
Objektbeschreibung
Dieses lichtdurchflutete Ladenlokal befindet sich in einem gepflegten Wohn- und Geschäftshaus in exponierter Lage der hochfrequentierten Detmolder Straße 435. Durch die markante Ecklage und die außergewöhnlich großzügige Schaufensterfront profitieren Sie von einer exzellenten Sichtbarkeit - sowohl stadtein- als auch...
Ausstattung
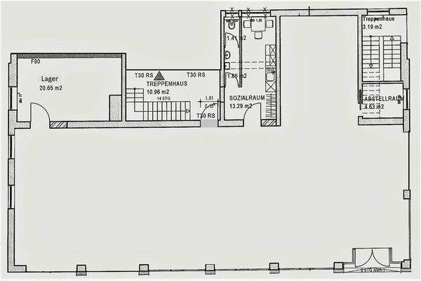
Gesamtnutzfläche: ca. 239,17 m²
Verkaufs-/Ausstellungsfläche: 197,34 m² (großzügig & lichtdurchflutet)
Lagerfläche: 20,65 m²
Sozialraum: 13,29 m²
Abstellraum: 4,63 m²
Nebenräume: Vorraum (1,86 m²) und separates WC (1,40 m²)
Ausstattungsmerkmale
Schaufenster: Sehr große...
Preisinformation
Nettokaltmiete: 1.600,00 EUR
Weitere Informationen
Sonstiges
Alle Angaben nach bestem Wissen, Irrtum und Zwischenvermietung vorbehalten. Dieses Exposé ist eine Vorabinformation, als Rechtsgrundlage gilt allein der abgeschlossene Mietvertrag.
Stichworte
Nutzfläche: 239,00 m², Gesamtfläche: 239,00 m²
Anbieter der Immobilie
Kriemelmann Immobilien GmbH
Danziger Str. 64, 33605 Bielefeld

Online-ID: 2nxky57
Referenznummer: 2831
Finde Angebote wie dieses
Hier geht es zu unserem Impressum, den Allgemeinen Geschäftsbedingungen, den Hinweisen zum Datenschutz und nutzungsbasierter Online-Werbung.