

Engel & Völkers Dachau - Bäck & Bäck Immobilien GbR
Herr Christian Bäck
081 ···
Nr. anzeigenPreise & Kosten
Warum sehe ich diese Anzeige? – Du siehst diese Anzeige basierend auf Ihrer Navigation auf unserer Website und den Suchkriterien, die du verwendet hast.
Lage
Rund 1.100 Einwohner genießen die Vorzüge von Kleinberghofen, einem gewachsenen und charmanten Ortsteil der Gemeinde Erdweg im Herzen des Landkreises Dachau. Die Lage besticht durch eine seltene Symbiose aus ländlicher Idylle und einer exzellenten regionalen Anbindung, was sie zu einem begehrten Rückzugsort für gehobene...
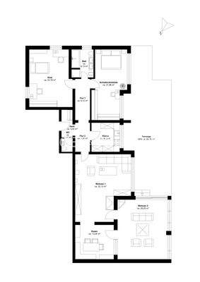
Die Wohnung
Bezug
ab sofort
Wohnanlage
Energie & Heizung
Warum sehe ich diese Anzeige? – Du siehst diese Anzeige basierend auf Ihrer Navigation auf unserer Website und den Suchkriterien, die du verwendet hast.
Energieausweistyp
Bedarfsausweis
Gebäudetyp
Wohngebäude
Baujahr laut Energieausweis
1969
Gültigkeit
seit 25.11.2020
Effizienzklasse
F
Endenergiebedarf
165,00 kWh/(m²·a)
Weitere Energiedaten
Energieträger
Gas
Heizungsart
Zentralheizung
Details
Objektbeschreibung
In dieser außergewöhnlichen Souterrain-Wohnung verschmelzen großzügiges Wohnen und naturnahe Idylle zu einer perfekten Einheit. Auf beeindruckenden ca. 150 m² Wohnfläche erwartet Sie ein Grundriss, der durch seine Offenheit und besondere architektonische Details besticht. Direkt beim Betreten der Wohnung werden Sie von einem...
Ausstattung
Blick ins Grüne
Preisinformation
1 Garagenstellplatz, Miete: 70,00 EUR
Nettokaltmiete: 1.800,00 EUR
Weitere Informationen
Stichworte
Gesamtfläche: 150,00 m², Anzahl der Schlafzimmer: 2, Anzahl der Badezimmer: 1, Anzahl Terrassen: 1, Balkon-Terrassen-Fläche: 28,00 m², Bundesland: Bayern
Anbieter der Immobilie

Online-ID: 2nxh95n
Referenznummer: I-048CKT-W-048CKT
Finde Angebote wie dieses
Hier geht es zu unserem Impressum, den Allgemeinen Geschäftsbedingungen, den Hinweisen zum Datenschutz und nutzungsbasierter Online-Werbung.