
Gruska Immobilien & Verwaltung GmbH
Herr J. Michael Gruska
036 ···
Nr. anzeigenPreise & Kosten
Kaution
1.200
Warum sehe ich diese Anzeige? – Du siehst diese Anzeige basierend auf Ihrer Navigation auf unserer Website und den Suchkriterien, die du verwendet hast.
Lage
Die Wohnung befindet sich im Philosophenweg 5 in Eisenach, einer ruhigen und beliebten Wohnlage.
Das Umfeld ist geprägt von gepflegten Wohnhäusern und viel Grün, ideal für Mieter, die eine angenehme und entspannte Wohnatmosphäre schätzen.
Das Stadtzentrum von Eisenach ist in wenigen Minuten erreichbar...
Die Wohnung
Wohnungslage
Erdgeschoss
Bezug
sofort
Wohnanlage
Energie & Heizung
Warum sehe ich diese Anzeige? – Du siehst diese Anzeige basierend auf Ihrer Navigation auf unserer Website und den Suchkriterien, die du verwendet hast.
Energieausweistyp
Verbrauchsausweis
Gebäudetyp
Wohngebäude
Baujahr laut Energieausweis
1920
Wesentliche Energieträger
Erdgas
Gültigkeit
26.09.2018 bis 25.09.2028
Effizienzklasse
D
Endenergieverbrauch
113,86 kWh/(m²·a)
Weitere Energiedaten
Energieträger
Gas
Heizungsart
Zentralheizung
Details
Objektbeschreibung
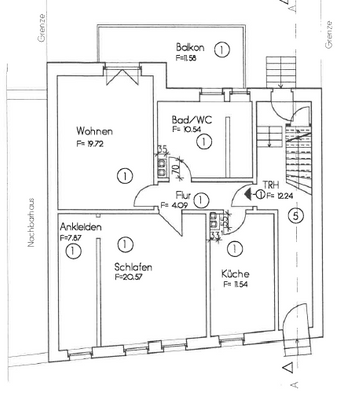
Zur Vermietung steht eine großzügig geschnittene 2-Zimmer-Wohnung mit einer Wohnfläche von ca. 81 m², gelegen im Erdgeschoss eines gepflegten Mehrfamilienhauses mit insgesamt vier Mietparteien.
Die Wohnung überzeugt durch eine durchdachte Raumaufteilung.
Alle Räume sind direkt vom Flur aus begehbar, was ein...
Ausstattung
• Wohnzimmer mit Zugang zum Balkon
• Schlafzimmer mit angrenzender Ankleide
• Separate Küche mit Fenster
• Tageslichtbad mit Badewanne und Dusche
• Flur mit Zugang zu allen Räumen
• Balkon
• Kellerabteil
Weitere Informationen
Sonstiges
Dieses Angebot ist freibleibend und unverbindlich. Irrtum und Zwischenverwertung bleiben vorbehalten. Es wurde auf der Grundlage der vom Eigentümer zur Verfügung gestellten Unterlagen, sowie dessen Angaben, ohne Gewähr gefertigt. Bitte geben Sie bei Exposéanfragen immer Ihre vollständige Anschrift und/oder...
Dokumente
Anbieter der Immobilie
Gruska Immobilien & Verwaltung GmbH
Karlsplatz 20, 99817 Eisenach
Online-ID: 2nxdy5g
Finde Angebote wie dieses
Hier geht es zu unserem Impressum, den Allgemeinen Geschäftsbedingungen, den Hinweisen zum Datenschutz und nutzungsbasierter Online-Werbung.