

DAHLER Regensburg / Inh. DEPREZ Immobilien
Frau Veerle Deprez
094 ···
Nr. anzeigenPreise & Kosten
Provision für Käufer
2,38 % inkl. gesetzlicher MwSt. bezogen auf den Kaufpreis inkl. MwSt.
Lage
Dieses charmante Wohn- und Geschäftshaus befindet sich in der idyllischen Gemeinde Hofkirchen, eingebettet in die malerische Landschaft Niederbayerns. Dank seiner strategisch günstigen Lage ist das Anwesen hervorragend an das Verkehrsnetz angebunden. Die nahegelegene Autobahn ist in nur etwa 5,6 Kilometern erreichbar und...
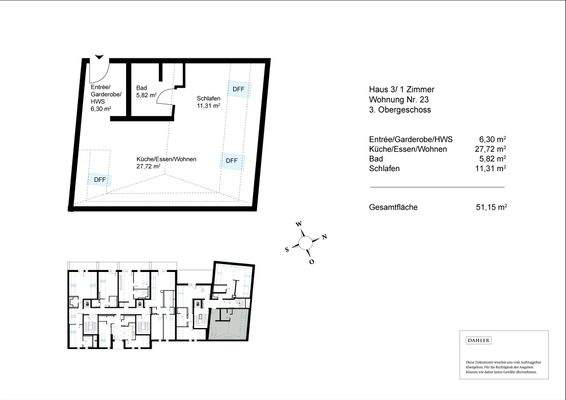
Die Wohnung
Wohnungslage
3. Geschoss (Dachgeschoss)
Wohnanlage
Energie & Heizung
Warum sehe ich diese Anzeige? – Du siehst diese Anzeige basierend auf Ihrer Navigation auf unserer Website und den Suchkriterien, die du verwendet hast.
Energieausweistyp
Bedarfsausweis
Gebäudetyp
Wohngebäude
Wesentliche Energieträger
FERN
Gültigkeit
bis 17.06.2035
Effizienzklasse
B
Endenergiebedarf
65,00 kWh/(m²·a)
Weitere Energiedaten
Energieträger
Fernwärme
Heizungsart
Fußbodenheizung
Details
Objektbeschreibung
Tradition und Moderne verschmelzen im Herzen des Hofkirchener Marktes.
Das Neubauprojekt in Hofkirchen bietet insgesamt 23 Wohnungen in einer Vielzahl von Größen und Ausstattungen, um den vielfältigen Bedürfnissen und Ansprüchen der zukünftigen Bewohner.innen gerecht zu werden.
Alle Wohnungen sind auf einem...
Ausstattung
Die Architektur dieses Ortes greift auf die traditionellen Baustile der Region zurück. Die charakteristischen Giebeldächer, schmalen Hausfronten und sorgfältig ausgewählten Materialien sind Merkmale, die den Gebäuden eine zeitlose Eleganz verleihen. Diese traditionelle Bauweise wird harmonisch mit der Auswahl der Farben und...
Preisinformation
1 Duplex-Stellplatz, Kaufpreis: 22.000,00 EUR
Weitere Informationen
Stichworte
Ost-Balkon/Terrasse, Anzahl der Schlafzimmer: 1, Anzahl der Badezimmer: 1, 3 Etagen, Distanz zum Kindergarten: 2.38, Distanz zur Grundschule: 3.13, Distanz zur Realschule: 6.70, Distanz zur nächsten Einkaufsmöglichkeit: 8.09, Distanz zum Gymnasium: 12.36, Distanz zum Flughafen: 6.58, Distanz zum Hauptbahnhof...
Anbieter der Immobilie
DAHLER Regensburg / Inh. DEPREZ Immobilien
Ludwig-Eckert-Str. 5-7, 93049 Regensburg

Online-ID: 2nxcr5g
Referenznummer: DC-RGB-1237_26
Finde Angebote wie dieses
Hier geht es zu unserem Impressum, den Allgemeinen Geschäftsbedingungen, den Hinweisen zum Datenschutz und nutzungsbasierter Online-Werbung.