
Immobilien Buck GmbH
Firma Immobilien Buck GmbH
+49 ···
Nr. anzeigenPreise & Kosten
Provision für Käufer
Für den Käufer 3,57% inkl. der gesetzl. MwSt. aus dem Kaufpreis des Objektes
Lage
Deggingen, der Mittelpunkt und die mit ca. 5.300 Einwohner größten Gemeinde des Oberen Filstals liegt sehr verkehrsgünstig am Aufstieg zur Schwäbischen Alb. Geprägt durch seine vielen Sehenswürdigkeiten, eine sehr gute Infrastruktur, ein funktionierendes Vereinsleben, sowie seine soziale Einrichtungen sorgen für eine hohe...
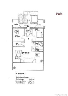
Die Wohnung
Wohnungslage
1. Geschoss
Bezug
kurzfristig
Wohnanlage
Energie & Heizung
Warum sehe ich diese Anzeige? – Du siehst diese Anzeige basierend auf Ihrer Navigation auf unserer Website und den Suchkriterien, die du verwendet hast.
Energieausweistyp
Bedarfsausweis
Gebäudetyp
Wohngebäude
Baujahr laut Energieausweis
2025
Wesentliche Energieträger
FERN
Gültigkeit
bis 29.04.2035
Effizienzklasse
B
Endenergiebedarf
72,90 kWh/(m²·a)
Weitere Energiedaten
Heizungsart
Fußbodenheizung
Details
Objektbeschreibung
Mitten im Herzen der beliebten Tälesgemeinde Deggingen wurde dieses moderne und architektonisch auffallende Neubauvorhaben, bestehend aus 10 hellen Wohnungen in Niedrigenergie-Massivbauweise, erstellt.
Diese sonnenverwöhnte Wohnung mit Ihren bodentiefen Fensterelementen befindet sich im Erdgeschoss und ist nahezu...
Ausstattung
- moderner Wohnungszuschnitt mit großer Terrasse und eigenem Gartenanteil
- Terrasse komplett überdacht
- nahezu barrierefreie Bauweise
- Personenaufzug
- Videosprechanlage
- Heimnetzwerk innerhalb der Wohnung
- elektrische Rollläden und Jalousien (Alu)
- durchgängig pflegeleichte Fliesenböden
-...
Weitere Informationen
Sonstiges
Allgemeiner Provisionshinweis:
Nach Abschluss eines notariellen Kaufvertrages ist für den Käufer eine Provision in Höhe von 3,57 % inkl. der gesetzlichen MwSt. aus dem Kaufpreis des Objektes zur Zahlung fällig.
Der Vermittler hat mit dem Verkäufer einen provisionspflichtigen Maklervertrag in gleicher Höhe...
Anbieter der Immobilie
Immobilien Buck GmbH
Stuttgarter Straße 75, 73312 Geislingen an der Steige
Online-ID: 2nxcj5n
Referenznummer: 448W
Finde Angebote wie dieses
Hier geht es zu unserem Impressum, den Allgemeinen Geschäftsbedingungen, den Hinweisen zum Datenschutz und nutzungsbasierter Online-Werbung.