
Crozilla.com
Dogma nekretnine
+38 ···
Nr. anzeigenPreise & Kosten
Provision für Käufer
Bitte beachte, das Angebot kann bei Vertragsabschluss die Zahlung einer Provision beinhalten. Weitere Informationen erhältst Du vom Anbieter.
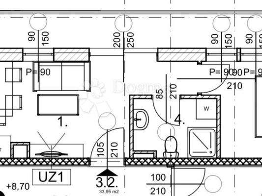
Die Wohnung
Wohnungslage
3. Geschoss
Details
Objektbeschreibung
ID CODE: ZG87361
Nives Ivkovic
Asistent u posredovanju
Mob: 095/399-5519
Tel: 01/647-3011
E-mail: nives.ivkovic@dogma-nekretnine.com
www.dogma-zagreb.com
Weitere Informationen
Stichworte
Anzahl der Schlafzimmer: 2, 1 Etagen
Anbieter der Immobilie
Crozilla.com
Nova cesta 60, 10000 ZAGREB
Online-ID: 2nx9p5s
Referenznummer: 19089913_1
Finde Angebote wie dieses
Hier geht es zu unserem Impressum, den Allgemeinen Geschäftsbedingungen, den Hinweisen zum Datenschutz und nutzungsbasierter Online-Werbung.