

Michael Guske Immobilien
Herr Michael Guske
+49 ···
Nr. anzeigenPreise & Kosten
Provision für Käufer
Bei erfolgreicher Vermittlung wird eine Käuferprovision in Höhe von 3,57% vom Kaufpreis, inkl. der gesetzlichen MwSt. an uns fällig!
Lage
Das Haus befindet sich in zentraler Lage von Allensbach und unweit vom See entfernt. Sämtliche Einkaufsmöglichkeiten für den täglichen Bedarf, eine Apotheke sowie Kindergarten und Grundschule sind bequem und fußläufig zu erreichen. Durch den eigenen Bahnhof, welcher regelmäßig vom "Seehas" angefahren wird, können die Städte...
Das Haus
Kategorie
Doppelhaushälfte
Baujahr
1976
Bezug
vermietet
Energie & Heizung
Warum sehe ich diese Anzeige? – Du siehst diese Anzeige basierend auf Ihrer Navigation auf unserer Website und den Suchkriterien, die du verwendet hast.
Energieausweistyp
Bedarfsausweis
Gebäudetyp
Wohngebäude
Baujahr laut Energieausweis
1976
Wesentliche Energieträger
Öl
Endenergiebedarf
213,60 kWh/(m²·a)
Weitere Energiedaten
Energieträger
Öl
Heizungsart
Zentralheizung
Details
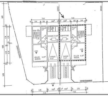
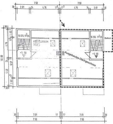
Objektbeschreibung
Die Doppelhaushälfte mit einer komfortablen Wohnfläche von ca. 154 m² wurde im Jahr 1976 in Massivbauweise auf einem ca. 262 m² großen Grundstück erbaut. Der aktuelle und großzügige Grundriss überzeugt mit 5 Zimmern, einer separaten Küche, einem Tageslichtbad mit Doppelwaschplatz, Wanne und Dusche sowie einem Gäste-WC. Auf...
Ausstattung
Das Objekt befindet sich in einem, dem Alter entsprechend gepflegten Allgemeinzustand. Die Wärmezufuhr wird aktuell durch eine Ölheizung gewährleistet. Zudem sorgt im Dachstudio ein gemütlicher Kamin für Behaglichkeit, gerade in den Wintermonaten. Eine Einbauküche ist bereits vorhanden. Das Tageslichtbad ist mit einem...
Weitere Informationen
Sonstiges
Das Haus ist aktuell vermietet. Die Kaltmiete beläuft sich auf 1.400,00/Monat.
Eigenbedarf ist prinzipiell möglich. Hier gelten die gesetzlichen Kündigungsfristen.
Anbieter der Immobilie

Online-ID: 2nx8g5z
Referenznummer: 475
Finde Angebote wie dieses
Hier geht es zu unserem Impressum, den Allgemeinen Geschäftsbedingungen, den Hinweisen zum Datenschutz und nutzungsbasierter Online-Werbung.