
Immobilien mit Herz GmbH
Frau Ramona Figur
004 ···
Nr. anzeigenPreise & Kosten
Provision für Käufer
3,57 inkl. MwSt.
Lage
Bardowick ist eine Gemeinde im Landkreis Lüneburg.
Einkaufsmöglichkeiten für den täglichen Bedarf wie z.B. diverse Supermärkte, Ärzte, Apotheke, Eisdiele und Restaurants sind in wenigen Minuten von der Wohnung aus zu erreichen.
Die Grundschule Bardowick befindet sich ca. 7 Gehminuten von der Wohnung...
Die Wohnung
Wohnungslage
Erdgeschoss
Wohnanlage
Energie & Heizung
Warum sehe ich diese Anzeige? – Du siehst diese Anzeige basierend auf Ihrer Navigation auf unserer Website und den Suchkriterien, die du verwendet hast.
Weitere Energiedaten
Energieträger
Öl
Heizungsart
Zentralheizung
Details
Objektbeschreibung
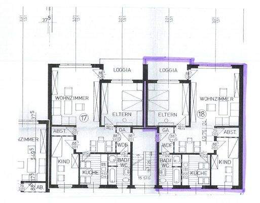
Die Wohnungseigentümergemeinschaft, zu der die angebotene Wohnung gehört, umfasst insgesamt 18 Wohnungen, die sich auf drei Hauseingänge verteilen. Die Wohnung befindet sich im Hochparterre des Hauseingangs Nr. 15, der insgesamt über sechs Wohneinheiten verfügt.
Das Gebäude wurde im Jahr 1979 in gelber Klinkerbauweise...
Ausstattung
Die helle und moderne Wohnung verfügt über 3-Zimmer und wurde im Jahr 2019 umfassend saniert. Herzstück der Wohnung ist das geräumige Wohnzimmer mit Blick in den Garten und direktem Zugang zur großzügigen Loggia.
Das hell geflieste Badezimmer wurde vollständig saniert und verfügt sowohl über eine Badewanne als auch...
Preisinformation
1 Garagenstellplatz
Weitere Informationen
Sonstiges
Bitte haben Sie dafür Verständnis, dass wir die Vermarktung der Wohnung für alle Beteiligten so angenehm wie möglich gestalten möchten. Daher werden wir Exposé-Anfragen nur beantworten, wenn Sie uns Ihre vollständige Adresse und eine Telefonnummer nennen.
Besichtigungen werden nur und ausschließlich über...
Anbieter der Immobilie

Immobilien mit Herz GmbH
Kiefernhöh 2, 21220 Seevetal
Online-ID: 2nx7h5z
Referenznummer: 2026-114
Finde Angebote wie dieses
Hier geht es zu unserem Impressum, den Allgemeinen Geschäftsbedingungen, den Hinweisen zum Datenschutz und nutzungsbasierter Online-Werbung.