
Maria Anna Stoppel Immobilien
Frau Maria Anna Stoppel
083 ···
Nr. anzeigenPreise & Kosten
Provision für Käufer
provisionsfrei
Lage
* ABSOLUT RUHIG im ORTSTEIL BETZNAU, Gemeinde Kressbronn am Bodensee.
Umgeben von prächtigen Obstgärten, Wiesen, Reben, Hopfen und Hügeln geniessen Sie hier Ruhe und einen ansprechenden Blick ins Grüne in Richtung Bodensee und Sie sind dennoch nur wenige Minuten vom Ortskern Kressbronn und dem Bodenseeufer...
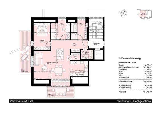
Die Wohnung
Wohnungslage
2. Geschoss (Dachgeschoss)
Bezug
2027
Wohnanlage
Energie & Heizung
Warum sehe ich diese Anzeige? – Du siehst diese Anzeige basierend auf Ihrer Navigation auf unserer Website und den Suchkriterien, die du verwendet hast.
Energieausweis: für diesen Gebäudetyp nicht notwendig
Weitere Energiedaten
Heizungsart
Fußbodenheizung, Luft-/Wasser-Wärmepumpe
Details
Objektbeschreibung
WOHNEN im EINKLANG mit NATUR und ARCHITEKTUR - ein ZUHAUSE mit ZUKUNFT!
Im idyllischen Rebenweg im Ortsteil Betznau entsteht ein modernes Mehrfamilienhaus, das eine bestehende Wohnanlage aus dem Jahr 2021 harmonisch ergänzt und vervollständigt.
Der Neubau fügt sich stimmig in das bestehende Wohnensemble ein...
Ausstattung
***RAUMAUFTEILUNG***
* Diele mit Garderobennische
* Großer Wohn-/Ess-Bereich mit offener Küche
* 2 Sonnenbalkone
* Schlafen
* Kind / Gast / Arbeiten
* Tageslichtbad mit Dusche, Badewanne und WC
* Gäste-WC
* Abstellraum
* Kellerraum
HOCHWERTIG - ZUKUNFTSORIENTIERT - ENERGIEEFFIZIENT...
Weitere Informationen
Sonstiges
Gerne bringen wir Ihnen das Bauvorhaben in einem persönlichen Termin näher.
Maria Anna Stoppel Immobilien
Schererweg 11
88149 Nonnenhorn
Büro: 08382/8188
Mobil: 0171/1215415
mas@stoppelimmobilien.de
Der Verkauf erfolgt ohne zusätzliche Provision für den Käufer!
Die Angaben in...
Anbieter der Immobilie
Maria Anna Stoppel Immobilien
Schererweg 11, 88149 Nonnenhorn
Online-ID: 2nx7c5l
Referenznummer: RW26/6
Finde Angebote wie dieses
Hier geht es zu unserem Impressum, den Allgemeinen Geschäftsbedingungen, den Hinweisen zum Datenschutz und nutzungsbasierter Online-Werbung.