
RUHR REAL GmbH
Herr Leon Ostermann
+49 ···
Nr. anzeigenPreise & Kosten
Provision für Mieter
provisionsfrei
Warum sehe ich diese Anzeige? – Du siehst diese Anzeige basierend auf Ihrer Navigation auf unserer Website und den Suchkriterien, die du verwendet hast.
Lage
Das Objekt befindet sich mitten in der Dortmunder City, unweit des Hauptbahnhofs. In nur wenigen Fahrminuten sind die Autobahnen (A40, A45, A1, A2) und der Flughafen erreichbar. Aufgrund der zentralen Lage ist darüber hinaus eine sehr gute Anbindung an den ÖPNV gewährleistet.
Gastronomisches Angebot und zahlreiche Händler...
Büro-/Praxisfläche
Kategorie
Bürofläche
Baujahr
1986
Bezug
sofort
Details
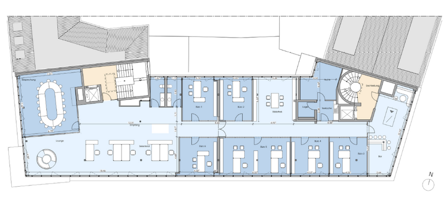
Objektbeschreibung
Die moderne Gewerbeimmobilie besticht durch Ihre zentrale Lage in der Dortmunder Innenstadt. Die interessante Außenarchitektur des Gebäudes, sowie die großen teilweise bodentiefen Fensterfronten sorgen für einen repräsentativen und angenehmen Arbeitsplatz.
Zur Zeit stehen folgende Flächen zur Disposition:
1. OG...
Ausstattung
. Sonnenschutz: außenliegend, elektrisch
. Bodenbelag: Teppichboden, PVC mit Holzoptik
. Verkabelung: CAT-6
. Kühlung: teilw. klimatisiert
. Kabelführung: Bodentanks
. Beleuchtung: arbeitsplatzgerechte Deckenbeleuchtung
. Teeküche: voll ausgestattet
. Aufzug: Personenaufzug
. Barrierearm: ebenerdiger...
Preisinformation
Nettokaltmiete: 15,00 EUR
Weitere Informationen
Sonstiges
Es gelten ausschließlich unsere AGB (www.ruhr-real.de/agb). Wir möchten Sie darauf hinweisen, dass die Angaben ausschließlich auf den uns vom Eigentümer übermittelten Unterlagen und Informationen basieren. Für Richtigkeit und Vollständigkeit übernehmen wir keine Gewähr. Zwischenvermietung...
Anbieter der Immobilie

RUHR REAL GmbH
Holsterhauser Platz 2, 45147 Essen
Online-ID: 2nx785e
Referenznummer: 413/E9
Finde Angebote wie dieses
Hier geht es zu unserem Impressum, den Allgemeinen Geschäftsbedingungen, den Hinweisen zum Datenschutz und nutzungsbasierter Online-Werbung.