

Muth & Schröder Immobilien
Herr Tobias Muth
093 ···
Nr. anzeigenPreise & Kosten
Provision für Käufer
3 % zzgl. gesetzl. MwSt. aus dem Kaufpreis
Lage
Rimpar ist eine attraktive Marktgemeinde im Landkreis Würzburg und liegt nur wenige Kilometer nördlich von Würzburg. Die Nähe zur Stadt Würzburg bietet eine hervorragende Anbindung an alle wichtigen Einrichtungen des täglichen Bedarfs, darunter Einkaufsmöglichkeiten, Schulen, Kindergärten sowie medizinische Versorgung.
Das Haus
Kategorie
Einfamilienhaus
Bezug
sofort
Derzeitige Nutzung
frei
Energie & Heizung
Warum sehe ich diese Anzeige? – Du siehst diese Anzeige basierend auf Ihrer Navigation auf unserer Website und den Suchkriterien, die du verwendet hast.
Weitere Energiedaten
Energieträger
Gas
Heizungsart
Etagenheizung, offener Kamin
Details
Objektbeschreibung
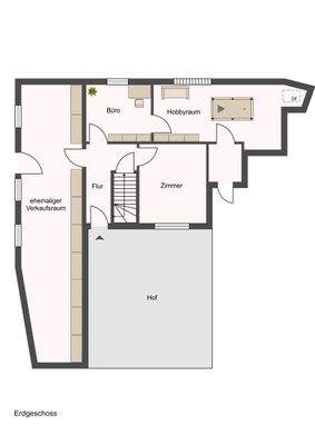
Im charmanten Altort von Rimpar befindet sich dieses sanierungsbedürftige Wohnhaus mit ehemaliger Bürofläche, das zahlreiche Möglichkeiten für individuelle Gestaltung und Nutzung bietet.
Das Gebäude verfügt insgesamt über 6 Räume sowie eine Küche und ein Badezimmer. Das Erdgeschoss wurde früher gewerblich als Büro...
Weitere Informationen
Gerne stehen wir Ihnen für weitere Informationen oder einen Besichtigungstermin zur Verfügung.
Dokumente
Anbieter der Immobilie

Online-ID: 2nx695y
Finde Angebote wie dieses
Hier geht es zu unserem Impressum, den Allgemeinen Geschäftsbedingungen, den Hinweisen zum Datenschutz und nutzungsbasierter Online-Werbung.