

Busemann & Schremmer Immobilien
Frau Sabine Frey
051 ···
Nr. anzeigenPreise & Kosten
Provision für Käufer
3,57% inkl. ges. MwSt.
Die Provision ist verdient und fällig nach notarieller Beurkundung des Kaufvertrages.
Lage
Die Immobilie befindet sich in zentraler Innenstadtlage von Neustadt am Rübenberge, in unmittelbarer Nähe zur Fußgängerzone. Durch die markante Ecklage bietet das Objekt eine sehr gute Sichtbarkeit sowie eine attraktive Anbindung an das städtische Umfeld. Einkaufsmöglichkeiten, Gastronomie, Ärzte, Banken und weitere...
Das Haus
Kategorie
Mehrfamilienhaus
Baujahr
1910
Bezug
sofort
Derzeitige Nutzung
vermietet
Energie & Heizung
Warum sehe ich diese Anzeige? – Du siehst diese Anzeige basierend auf Ihrer Navigation auf unserer Website und den Suchkriterien, die du verwendet hast.
Energieausweistyp
Bedarfsausweis
Gebäudetyp
Wohngebäude
Wesentliche Energieträger
Gas
Gültigkeit
30.01.2025 bis 29.01.2035
Effizienzklasse
G
Weitere Energiedaten
Energieträger
Gas
Details
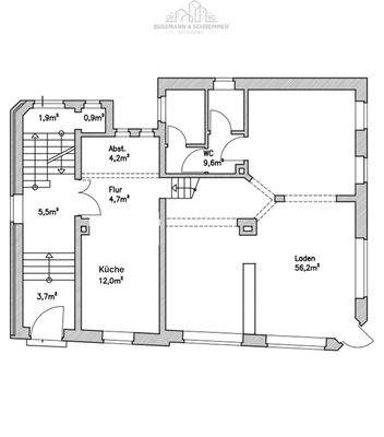
Objektbeschreibung
Wohn- und Geschäftshaus in zentraler Innenstadtlage von Neustadt am Rübenberge. Das um ca. 1910 errichtete Gebäude befindet sich in markanter Ecklage direkt am Eingang zur Fußgängerzone und bietet eine gute Sichtbarkeit sowie vielseitige Nutzungsmöglichkeiten.
Im Erdgeschoss befindet sich eine Gewerbeeinheit, die derzeit...
Weitere Informationen
Sonstiges
Alle Angaben sind ohne Gewähr und basieren ausschließlich auf Informationen, die uns übermittelt wurden. Wir übernehmen keine Gewähr für die Vollständigkeit, Richtigkeit und Aktualität dieser Angaben.
Homepage - http://busemann-schremmer.de/immobilien/
Stichworte
Anzahl der Schlafzimmer: 6...
Anbieter der Immobilie

Online-ID: 2nx2t5r
Referenznummer: 20232698
Finde Angebote wie dieses
Hier geht es zu unserem Impressum, den Allgemeinen Geschäftsbedingungen, den Hinweisen zum Datenschutz und nutzungsbasierter Online-Werbung.