

Dambacher Immobilien- und Baucoaching UG (haftungsbeschränkt)
Herr Franz Dambacher
49- ···
Nr. anzeigenPreise & Kosten
Provision für Käufer
2,380 % inkl. MwSt.
Lage
In Lauben bei Dietmannsried gibt es einen Kindergarten, eine Grundschule, zur Hauptschule fahren Schüler nach Dietmannsried, bis zur 10. Klasse. Zur Bushaltestelle sind es ca. 100 m.
In Lauben gibt es einen Edeka-Lebensmittelmarkt, eine Bäckerei, eine Bank, und einen Bank-Automaten.
Hausärzte finden sie in Heising...
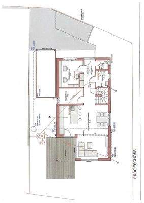
Das Haus
Kategorie
Einfamilienhaus
Baujahr
2017
Energie & Heizung
Warum sehe ich diese Anzeige? – Du siehst diese Anzeige basierend auf Ihrer Navigation auf unserer Website und den Suchkriterien, die du verwendet hast.
Energieausweistyp
Verbrauchsausweis
Gebäudetyp
Wohngebäude
Wesentliche Energieträger
Erdgas
Gültigkeit
13.02.2026 bis 12.02.2036
Effizienzklasse
B
Endenergieverbrauch
50,10 kWh/(m²·a)
Weitere Energiedaten
Energieträger
Gas
Heizungsart
Fußbodenheizung
Details
Objektbeschreibung
Neuwertiges, gepflegtes Einfamilienhaus, mit hochwertiger Ausstattung. Alle Wohnräume mit Eiche-Parkettböden, Eingangsbereich und Arbeitszimmer mit Fliesen. Massivholz-Sichtdecken im Erdgeschoss.
Erd- und Oberschoss / Dachgeschoss.
Arbeitszimmer / Hauswirtschaftsraum im Erdgeschoss. Dieser Raum wird derzeit als...
Preisinformation
2 Stellplätze
1 Garagenstellplatz
Weitere Informationen
Stichworte
Garage vorhanden, Carport vorhanden, Anzahl Balkone: 1, Anzahl Terrassen: 2, Bundesland: Bayern
Anbieter der Immobilie
Dambacher Immobilien- und Baucoaching UG (haftungsbeschränkt)
Memminger Straße 15a, 87463 Dietmannsried

Online-ID: 2nx245k
Referenznummer: 0-35
Finde Angebote wie dieses
Hier geht es zu unserem Impressum, den Allgemeinen Geschäftsbedingungen, den Hinweisen zum Datenschutz und nutzungsbasierter Online-Werbung.