

Holtz Immobilien GmbH
Herr Peter Königstein
004 ···
Nr. anzeigenPreise & Kosten
Provision für Käufer
provisionsfrei
Lage
Die Immobilie befindet sich in Liptingen, einem charmanten Ortsteil der Gemeinde Emmingen-Liptingen im Landkreis Tuttlingen. Die ländlich geprägte Umgebung bietet eine hohe Lebensqualität und verbindet naturnahes Wohnen mit guter Erreichbarkeit der umliegenden Städte.
Liptingen liegt auf der Hochebene des Hegaus und...
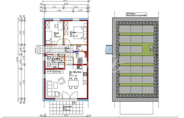
Das Haus
Kategorie
Doppelhaushälfte
Baujahr
2026
Energie & Heizung
Warum sehe ich diese Anzeige? – Du siehst diese Anzeige basierend auf Ihrer Navigation auf unserer Website und den Suchkriterien, die du verwendet hast.
Energieausweistyp
Bedarfsausweis
Gebäudetyp
Wohngebäude
Baujahr laut Energieausweis
2026
Wesentliche Energieträger
LUFTWP
Gültigkeit
bis 12.10.2035
Effizienzklasse
A+
Endenergiebedarf
5,20 kWh/(m²·a)
Weitere Energiedaten
Heizungsart
Fußbodenheizung, Luft-/Wasser-Wärmepumpe
Details
Objektbeschreibung
Sie suchen für sich und Ihre kleine Familie die eigenen 4-Wände, gerne mit Garten, am liebsten ein Einfamilienhaus mit energetisch modernem Standard, aber bezahlbar ?
Oder sind die Kinder schon aus dem Haus und Sie benötigen nur noch eine kleine Ausgangsbasis für Ihre ausführlichen Reisepläne mit dem Wohnmobil ? Sie...
Ausstattung
Das Gebäude wird nach den Anforderungen des Qualitätssiegels nachhaltiges Gebäude (QnG) geplant und errichtet. Ziel ist ein energieeffizientes, ressourcenschonendes Wohngebäude mit hoher Nutzungs- und Werthaltigkeit oder einfach ausgedrückt niedrigen laufenden Kosten.
Die Bauweise entspricht modernen energetischen...
Preisinformation
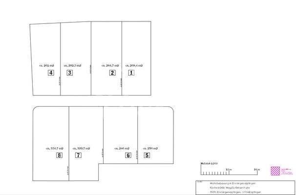
2 Stellplätze, Kaufpreis je: 2.500,00 EUR
Weitere Informationen
Sonstiges
Qualitätssiegel nachhaltiges Gebäude (QnG) - hochinteressant gleichermaßer für Eigennutzer und Kapitalanleger :
Eigennutzer:
--> Eigenutzer ohne Kind erhalten ein KFW Darlehen mit günstigen Zinsen über max. 100.000 €
--> Eigennutzer mit einem Kind erhalten ein KFW Darlehen mit...
Anbieter der Immobilie

Online-ID: 2nwzn5f
Referenznummer: 42201
Finde Angebote wie dieses
Hier geht es zu unserem Impressum, den Allgemeinen Geschäftsbedingungen, den Hinweisen zum Datenschutz und nutzungsbasierter Online-Werbung.