

Viktor Klapper GmbH
Frau Vanessa Mehlsteibl
087 ···
Nr. anzeigenPreise & Kosten
Kaution
1316
Warum sehe ich diese Anzeige? – Du siehst diese Anzeige basierend auf Ihrer Navigation auf unserer Website und den Suchkriterien, die du verwendet hast.
Lage
Im aufstrebenden Markt Massing finden Sie eine sehr gute Infrastruktur von Kindergarten, Grund-, Haupt-, und Mittelschule, sowie mehrere Supermärkte. Die medizinische Versorgung ist durch Ärzte, Zahnärzte und Apotheke gewährleistet.
Eine intaktes Vereinsleben vom Fußball, Tennis, Trachtenverein und und und garantiert...
Die Wohnung
Kategorie
Maisonette
Wohnungslage
2. Geschoss
Bezug
01.06.2026
Wohnanlage
Energie & Heizung
Warum sehe ich diese Anzeige? – Du siehst diese Anzeige basierend auf Ihrer Navigation auf unserer Website und den Suchkriterien, die du verwendet hast.
Energieausweistyp
Verbrauchsausweis
Gebäudetyp
Wohngebäude
Baujahr laut Energieausweis
1999
Wesentliche Energieträger
Erdgas
Gültigkeit
18.01.2019 bis 18.01.2029
Effizienzklasse
D
Endenergieverbrauch
124,00 kWh/(m²·a)
Weitere Energiedaten
Energieträger
Gas
Heizungsart
Zentralheizung
Details
Objektbeschreibung
Durch großflächige Fensteröffnungen ist eine optimale Belichtung der Wohnräume gewährleistet. Der hohe Wohnwert wird zusätzlich durch die großen Balkone bzw. Terrassen gesteigert, die das Erscheinungsbild der Sudfassade prägen. Der Zugang bis an die Wohnungseingangstüren erfolgt barrierefrei..
Ausstattung
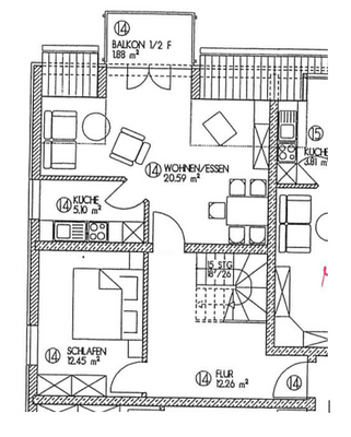
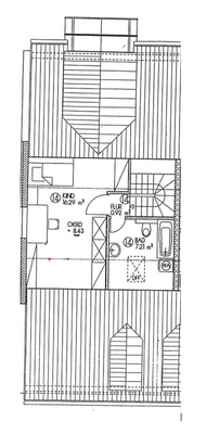
Die gepflegte 3-Zimmer Wohnung mit insgesamt ca. 74,38 m² Wohnfläche befindet sich im 2. OG sowie Dachgeschoss der Wohnanlage.
Über den Eingangsbereich gelangt man direkt in den großzügigen Flurbereich mit Wendeltreppe, die in den oberen Bereich der Wohnung führt. Im unteren Teil der Wohnung, wird das offene und...
Weitere Informationen
Sonstiges
Zentrale Huldsessen
Mitterweg 14, Huldsessen
84339 Unterdietfurt
Tel.: 08721/1264 21
Fax: 08721/1264 20
Filiale Frontenhausen
Bahnhofstraße 74 c
84160 Frontenhausen
Tel.: 08732/9373 858
Fax: 08732/9373 860
E-Mail: vanessa.mehlsteibl@immobilien-klapper.de
Internet...
Dokumente
Anbieter der Immobilie

Online-ID: 2nwz25w
Referenznummer: Whg 14 - Maisonette
Finde Angebote wie dieses
Hier geht es zu unserem Impressum, den Allgemeinen Geschäftsbedingungen, den Hinweisen zum Datenschutz und nutzungsbasierter Online-Werbung.