

Immobiliengesellschaft der Westerwald Bank mbH
Frau Caterina Schäfer
+49 ···
Nr. anzeigenPreise & Kosten
Kaution
1.100,00
Warum sehe ich diese Anzeige? – Du siehst diese Anzeige basierend auf Ihrer Navigation auf unserer Website und den Suchkriterien, die du verwendet hast.
Lage
Die Stadt Wissen, welche zugleich Sitz der Verbandsgemeindeverwaltung ist, verfügt über eine gute Infrastruktur. Geschäfte des täglichen Bedarfs, Banken, Behörden, Schulen jeglicher Art, Kindergärten sind vor Ort zu finden und in wenigen Gehminuten oder um die Ecke zu erreichen.
Zu erwähnen ist auch, dass der Regiobahnhof...
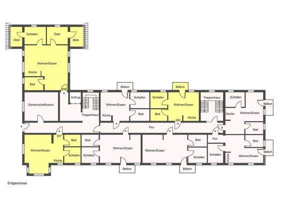
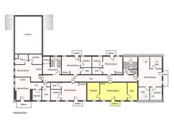
Die Wohnung
Bezug
01.05.2026
Wohnanlage
Energie & Heizung
Warum sehe ich diese Anzeige? – Du siehst diese Anzeige basierend auf Ihrer Navigation auf unserer Website und den Suchkriterien, die du verwendet hast.
Energieausweistyp
Bedarfsausweis
Gebäudetyp
Wohngebäude
Baujahr laut Energieausweis
1950
Wesentliche Energieträger
Elektroenergie
Gültigkeit
06.11.2024 bis 05.11.2034
Effizienzklasse
A+
Endenergiebedarf
29,70 kWh/(m²·a)
Weitere Energiedaten
Energieträger
Elektro
Heizungsart
Luft-/Wasser-Wärmepumpe
Details
Objektbeschreibung
Ab dem 01. Mai 2026 können vollständig sanierte Mietwohnungen in unterschiedlicher Größe im Haus Schönstein in ansprechender Wohn- und Aussichtslage von Wissen-Schönstein angemietet werden!
Das Haus Schönstein, welches seinerzeit als Muttergenesungswerk fungierte, wurde um ca. 1950 baulich errichtet. Vor wenigen Jahren...
Ausstattung
Wärmepumpen-Fußbodenheizung, Warmwasserversorgung über Durchlauferhitzer, Untertischgerät für Warmwasserversorgung im Küchenbereich bereits vorhanden, modernes Bad mit bodentiefer Dusche, Kunststofffenster dreifach verglast mit elektrisch angetriebenen Rollläden, neuwertige Elektroinstallation, Oberböden in den Wohnräumen...
Preisinformation
Nettokaltmiete: 550,00 EUR
Weitere Informationen
Stichworte
Bundesland: Rheinland-Pfalz
Anbieter der Immobilie

Online-ID: 2nwxt5s
Referenznummer: 2 109 2
Finde Angebote wie dieses
Hier geht es zu unserem Impressum, den Allgemeinen Geschäftsbedingungen, den Hinweisen zum Datenschutz und nutzungsbasierter Online-Werbung.