

Sirius Facilities GmbH
Herr Felix Meier
080 ···
Nr. anzeigenPreise & Kosten
Kaution
3 Bruttowarmmieten
Provision für Mieter
Die Vermietung erfolgt provisionsfrei!
Warum sehe ich diese Anzeige? – Du siehst diese Anzeige basierend auf Ihrer Navigation auf unserer Website und den Suchkriterien, die du verwendet hast.
Lage
Dank seiner Lage im Stuttgarter Umland ist der Sirius Business Park hervorragend an die regionale Infrastruktur angebunden. Die Bushaltestelle Pfingstwasen, die von den Linien 912 und 913 angefahren wird, befindet sich nur 300 Meter vom Gelände entfernt. Mit dem eigenen Fahrzeug erreichen Sie uns schnell über die Stuttgarter...
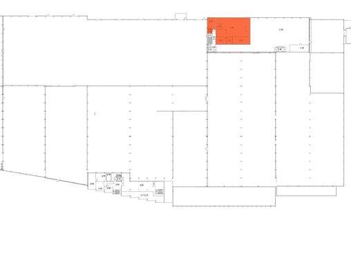
Die Industriefläche
Kategorie
Lagerhalle
Energie & Heizung
Warum sehe ich diese Anzeige? – Du siehst diese Anzeige basierend auf Ihrer Navigation auf unserer Website und den Suchkriterien, die du verwendet hast.
Weitere Energiedaten
Heizungsart
Zentralheizung
Details
Objektbeschreibung
Im Sirius Business Park Göppingen können Sie zu fairen und transparenten Konditionen Gewerbeflächen mieten - sei es ein helles Büro mit angenehmer Atmosphäre für Ihr Team oder eine Lagerfläche. Außerdem finden Sie hier passende Räumlichkeiten für Ihre Produktion.
Der vielseitige Standort ist bereits Heimat vieler...
Ausstattung
. Fläche: 379,78 m² im 2.OG (flexible Raumgestaltung)
. Möbliert Teil, Voll erschlossen
. Lastenaufzug ,Etagenheizung, Teeküche
. Boden/Traglast: Teppichboden/ Nadelfilz, Bodentraglast 550 kg/m²
. Deckenhöhe: 3,60 m
. Parken: Mietbare Stellplätze verfügbar
. Mietpreis: Ab 2 EUR/m² (zzgl. Nebenkosten &...
Weitere Informationen
Sonstiges
*Das Angebot gilt für Neukundenverträge, die innerhalb von 72 Stunden nach Besichtigung unterzeichnet werden. Der Sonderpreis bezieht sich auf die Nettokaltmiete und wird ab einer Laufzeit von 12 Monaten in den ersten 2 Monaten gewährt. Das Angebot gilt im Zeitraum 08.09.25-31.03.26 auf ausgewählte Flächen und...
Dokumente
Anbieter der Immobilie

Online-ID: 2nwww5m
Referenznummer: A12503ä
Finde Angebote wie dieses
Hier geht es zu unserem Impressum, den Allgemeinen Geschäftsbedingungen, den Hinweisen zum Datenschutz und nutzungsbasierter Online-Werbung.