

Dr. Schmidt-Bovendeert Immobilien OHG
Frau Ute Brömmelhaus
026 ···
Nr. anzeigenPreise & Kosten
Provision für Käufer
3,57% inkl. MwSt.
Lage
Das Wohnhaus befindet sich in zentraler und dennoch ruhiger Lage von Bad Marienberg. Die Schulen von Bad Marienberg liegen in der Umgebung und auch die Stadt mit den Einkaufsmöglichkeiten können Sie fußläufig erreichen. Bad Marienberg ist eine beliebte Kur- und Badestadt in idyllischer Lage und bietet eine Vielzahl von...
Das Haus
Kategorie
Einfamilienhaus
Baujahr
1975
Energie & Heizung
Warum sehe ich diese Anzeige? – Du siehst diese Anzeige basierend auf Ihrer Navigation auf unserer Website und den Suchkriterien, die du verwendet hast.
Energieausweistyp
Bedarfsausweis
Gebäudetyp
Wohngebäude
Baujahr laut Energieausweis
1975
Wesentliche Energieträger
LUFTWP
Gültigkeit
bis 17.04.2035
Effizienzklasse
B
Endenergiebedarf
55,00 kWh/(m²·a)
Weitere Energiedaten
Haustyp
Massivhaus
Energieträger
Elektro
Details
Objektbeschreibung
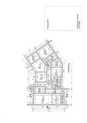
Dieses gepflegte und zeitgemäß sanierte Einfamilienhaus in Bad Marienberg überzeugt durch seine großzügigen Platzverhältnisse und ein außergewöhnlich weitläufiges Grundstück von ca. 2.008 m². Das in massiver Bauweise errichtete Haus aus dem Baujahr 1975 bietet mit einer Wohnfläche von ca. 262 m² ideale Voraussetzungen für...
Ausstattung
- 2005 Sanierung Flachdach (Dachaufbau nach EnEV 2002) inkl. 180mm Dämmung
- 2011 Umbau und Sanierung Büroräume
- 2018 Umbau und Sanierung Bad im Untergeschoss (Saunabereich)
- 2019 Geräteschuppen im Garten
- 2022 Außenanlagen Untergeschoss inkl. Drainage, Terrassenbelag und Treppenaufgang
- 2022 Teilerneuerung...
Weitere Informationen
Sonstiges
Die in unserem Exposé enthaltenen Aussagen basieren ausschließlich auf Informationen, die uns vom Verkäufer zur Verfügung gestellt wurden. Wir übernehmen daher keine Gewähr für die Vollständigkeit und Richtigkeit der Angaben. Das Immobilienangebot ist freibleibend. Irrtum und Zwischenverkauf bleiben...
Anbieter der Immobilie

Online-ID: 2nwwp5l
Referenznummer: 4661
Finde Angebote wie dieses
Hier geht es zu unserem Impressum, den Allgemeinen Geschäftsbedingungen, den Hinweisen zum Datenschutz und nutzungsbasierter Online-Werbung.