
Uwe Rudolph Baubetreuung GmbH
Uwe Rudolph
034 ···
Nr. anzeigenPreise & Kosten
Provision für Käufer
17.778,- € inkl. 19% gesetzl. Mwst. in Höhe von 2.838,60 € (50% anteilige Kosten in Höhe von 8.889,- € inkl. gesetzl. Mwst.) inkl. MwSt.
Lage
Das Objekt befindet sich im beliebtesten Stadtteil Großzschocher. In 5 Fahrradminuten ist man am Landschaftspark Cospudener See.
Das Wohnhaus befindet sich in ruhiger Lage.
Öffentliche Verkehrsmittel, Einkaufsmöglichkeiten und Schulen befinden sich in unmittelbarer Nähe und in nur wenigen Gehminuten entfernt.
Die Wohnung
Wohnungslage
3. Geschoss
Wohnanlage
Energie & Heizung
Warum sehe ich diese Anzeige? – Du siehst diese Anzeige basierend auf Ihrer Navigation auf unserer Website und den Suchkriterien, die du verwendet hast.
Weitere Energiedaten
Energieträger
Gas
Heizungsart
Zentralheizung
Details
Objektbeschreibung
Bei dem Objekt handelt es sich um einen im Jahr 2000 sanierten Altbau mit 7 Wohnungen auf 4 Etagen. Die Wohnungen sind mit Balkon ausgestattet und im Kellerbereich befinden sich zusätzliche Abstellräume.
Auf dem begrüntem Hof befinden sich neben Sitzgelegenheiten, auch ein Außenstellplatz pro Wohnung. Es besitzt ein...
Ausstattung
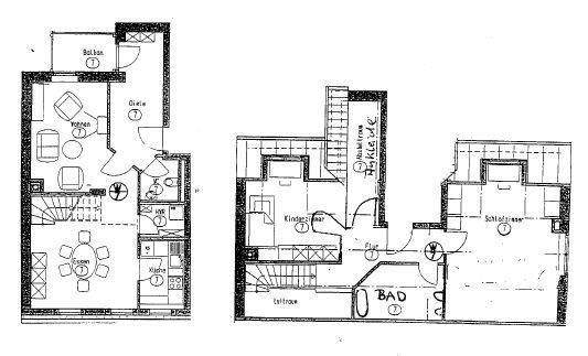
Es handelt sich um eine Dachgeschoß-Maisonettwohnung, welche sich im 3. und 4. Obergeschoß des Hauses befindet.
Das Wohn-und Eßzimmer erreicht man über den Flur der unteren Etage, ebenso wie das Gäste-WC, die Küche und den Zugang
zum Balkon. Das Wohnzimmer und Balkon sind nach Westen ausgerichtet.
Diese Etage hat...
Preisinformation
Soll-Mieteinnahmen pro Jahr: 7.308,00 EUR
Ist-Mieteinnahmen pro Jahr: 7.308,00 EUR
Weitere Informationen
Sonstiges
Fotos zur Wohnung liegen uns derzeit nicht vor.
Stichworte
Stellplatz vorhanden, Wohnungsnr.: 7
Anbieter der Immobilie
Uwe Rudolph Baubetreuung GmbH
Wurzner Str. 176, 04318 Leipzig
Online-ID: 2nww55y
Referenznummer: Hutte15-7.VK
Finde Angebote wie dieses
Hier geht es zu unserem Impressum, den Allgemeinen Geschäftsbedingungen, den Hinweisen zum Datenschutz und nutzungsbasierter Online-Werbung.