
Cooper Immobilien AG
Bernd Heibeck
017 ···
Nr. anzeigenPreise & Kosten
Provision für Käufer
2,99 % inkl. ges. MwSt.
Die Käuferprovision beträgt 2,99% (inkl. MwSt.) vom Kaufpreis.
Lage
Wagenitz liegt idyllisch im Herzen des Havellands, eingebettet in die sanfte Hügellandschaft zwischen Wäldern, Feldern und Wiesen. Das beschauliche Dorf bietet seinen Bewohnern eine naturnahe Lebensweise mit hoher Lebensqualität und wohltuender Ruhe - fernab vom städtischen Trubel und dennoch gut angebunden.
Die...
Das Haus
Kategorie
Einfamilienhaus
Baujahr
1915
Bezug
sofort
Energie & Heizung
Warum sehe ich diese Anzeige? – Du siehst diese Anzeige basierend auf Ihrer Navigation auf unserer Website und den Suchkriterien, die du verwendet hast.
Energieausweistyp
Bedarfsausweis
Gebäudetyp
Wohngebäude
Wesentliche Energieträger
Öl
Gültigkeit
27.03.2026 bis 27.03.2036
Effizienzklasse
G
Endenergiebedarf
226,01 kWh/(m²·a)
Weitere Energiedaten
Energieträger
Öl
Heizungsart
Zentralheizung
Details
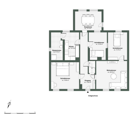
Objektbeschreibung
Zum Verkauf steht ein charmantes Einfamilienhaus auf einem großzügigen Gartengrundstück mit viel Platz für Freizeit und individuelle Gestaltungsmöglichkeiten.
Das Wohnhaus wurde ca. 1910 in solider Bauweise errichtet und befindet sich auf einem Grundstück mit einer Größe von ca. 1.950 m². Zwischen 2000 und 2005 wurden...
Ausstattung
- Teilsaniertes Einfamilienhaus
- Wohnfläche ca. 90 m²
- Grundstücksfläche ca. 1.950 m²
- 5 Zimmer
- 1 Badezimmer
- separate Küche
- Modernisierungen
- Dach erneuert (ca. 2005)
- Fassade erneuert (ca. 2005)
- Kunststofffenster erneuert (ca. 2005)
- Ölheizung (ca. 26 Jahre alt)
- Öltank ca...
Weitere Informationen
Sonstiges
Ein Haus mit Geschichte
Das Haus ist seit vielen Jahrzehnten eng mit der Geschichte seiner Eigentümer verbunden. Sie zogen 1970 in das damalige Haus in der Dorfstraße ein. Zu dieser Zeit wurde der Hof noch teilweise landwirtschaftlich genutzt, da über den Hof Getreide für eine benachbarte Scheune...
Dokumente
Anbieter der Immobilie
Online-ID: 2nwup5t
Referenznummer: 1160
Finde Angebote wie dieses
Hier geht es zu unserem Impressum, den Allgemeinen Geschäftsbedingungen, den Hinweisen zum Datenschutz und nutzungsbasierter Online-Werbung.