

Selbstst. Handelsvertretung der LBS Immobilien GmbH NordOst i.H.d. Spk. Oder-Spree
Herr Sebastian Wollank
033 ···
Nr. anzeigenPreise & Kosten
Provision für Käufer
2,975 % inkl. MwSt.
Lage
Gelegen mitten im Zentrum von Fürstenwalde/Spree, bietet diese Wohnung eine hervorragende Lage. Die Stadt ist bekannt für ihre grünen Parks und historischen Sehenswürdigkeiten, sie bietet eine hohe Lebensqualität.
In der unmittelbaren Umgebung befinden sich zahlreiche Einkaufsmöglichkeiten, Cafés und Restaurants sowie...
Die Wohnung
Wohnungslage
4. Geschoss
Bezug
nach Vereinbarung
Wohnanlage
Energie & Heizung
Warum sehe ich diese Anzeige? – Du siehst diese Anzeige basierend auf Ihrer Navigation auf unserer Website und den Suchkriterien, die du verwendet hast.
Energieausweistyp
Bedarfsausweis
Gebäudetyp
Wohngebäude
Baujahr laut Energieausweis
2025
Wesentliche Energieträger
Fernwärme
Gültigkeit
28.01.2022 bis 27.01.2032
Effizienzklasse
A+
Endenergiebedarf
14,70 kWh/(m²·a)
Weitere Energiedaten
Energieträger
Fernwärme
Haustyp
KfW 55
Heizungsart
Fußbodenheizung, Zentralheizung
Details
Objektbeschreibung
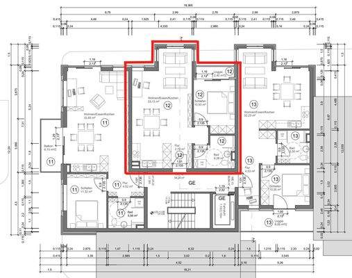
Diese attraktive Wohnung im 4. Obergeschoss ist Teil eines ansprechenden Neubauprojekts im Herzen von Fürstenwalde/Spree. Die Wohnfläche von ca. 54,24 m² verteilt sich geschickt auf zwei Zimmer, eine offene Küche, ein Badezimmer mit einladender Dusche und eine großzügige Loggia. Die Fertigstellung ist für das Jahr 2026...
Ausstattung
Die Wohnung wird hochwertig ausgestattet (Fenster mit Dreifachisolierung teils bodentief, elektrische Rollläden, großformatige Fliesen und moderne Bodenbeläge, große bodentiefe Dusche, Fußbodenheizung,...).
Weitere Informationen
Sonstiges
Weiterführende Informationen erhalten Sie bei Vorlage Ihrer vollständigen Kontaktdaten. Alle Angaben sind freibleibend, unverbindlich, ohne Gewähr und basieren ausschließlich auf Informationen, die uns von unserem Auftraggeber übermittelt wurden. Wir übernehmen keine Gewähr für Vollständigkeit, Richtigkeit und...
Anbieter der Immobilie
Selbstst. Handelsvertretung der LBS Immobilien GmbH NordOst i.H.d. Spk. Oder-Spree
Eisenbahnstraße 151-152, 15517 Fürstenwalde/Spree

Online-ID: 2nwug55
Referenznummer: 57-0762-0901-WE12
Finde Angebote wie dieses
Hier geht es zu unserem Impressum, den Allgemeinen Geschäftsbedingungen, den Hinweisen zum Datenschutz und nutzungsbasierter Online-Werbung.